Maison neuve à
Anisy
(14610) Référence :
JS2389316_3
Prix du projet : Maison avec Terrain
prix 224 000 €
- 5 pièces
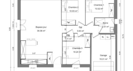
- 3 chambres
- Surface maison 85 m2
VENTE : maison de 5 pièces (85 m²) à Thaon
Idéalement située - À vendre à Thaon (14610) : maison neuve 5 pièces de 85 m² et de 79 000 m² de terrain. Elle propose trois chambres, une cuisine et une salle de bains.
À proximité : gares (Saint-Germain-en-Laye Bel-Air-Fourqueux T13 et Bretteville-Norrey), École Primaire Yvonne Guégan, tennis, boulangerie et épicerie. Nationales N13 et N814 accessibles à 8 km. Caen à 10 km.
Cette maison de 5 pièces est proposée à l'achat pour 224 000 €.
Contactez Emilie HUE (tél : 06-29-81-46-66) pour toute question sur la maison.
Annonce proposée par un Agent Commercial Partenaire.
Mentions légales
Terrain proposé par un partenaire foncier selon disponibilités et autorisation de publicité au prix de 79 000 €. Hors droit d'enregistrement et frais de notaire. Terrain + Maison proposés au prix de 224 000 € (Hors branchements et raccordements, papiers peints, peintures, revêtement de sol dans les chambres. Tarif modifiable sans préavis). Etiquette énergie : A. Différents modèles disponibles pour ce terrain. Assurances et garanties du constructeur (RC professionnelle, décennale, dommage ouvrage, garantie de remboursement de l'acompte, livraison à prix et délai convenu) : https://www.maisons-france-confort.fr/mentions-legales/. HEXAOM Services est enregistré auprès de l'ORIAS en tant que Courtier en financement, Niveau 1, sous le numéro 14001345.Agence Maisons France Confort de Bayeux (14400)
- Téléphone :
- 02 31 51 20 91
- Adressse :
- 2, rue Saint Loup
14400 Bayeux, France
