Maison neuve à
Annequin
(62149) Référence :
FW2381431_2
Prix du projet : Maison avec Terrain
prix 245 000 €
- 5 pièces
- 3 chambres
- Surface maison 83 m2
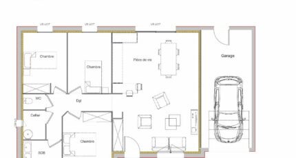
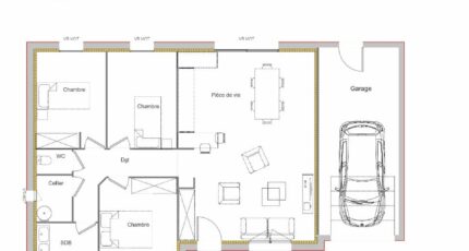
VENTE d'une maison T5 (83 m²) à Annequin
MAISON 5 PIÈCES NEUVE - PROCHE DE LILLE
A quelques kilomètres de Lille, notre agence Maisons France Confort Béthune est heureuse de vous proposer cette maison de 5 pièces de plain-pied de 83 m² à Annequin (62149). Conçue de plain-pied, elle compte trois chambres, une cuisine et une salle de bains.
Le terrain de la maison est de 450 m².
Cette maison est neuve.
Il y a l'École Maternelle Jacques Prévert et l'École Élémentaire André Deuve à moins de 10 minutes à pied. Niveau transports, on trouve 11 gares à moins de 10 minutes en voiture. Les autoroutes A26 et A21 et la nationale N47 sont accessibles à moins de 9 km. Il y a deux bibliothèques, un tennis, deux boulangeries, un supermarché, deux commerces, un bureau de poste et une boucherie-charcuterie dans les environs.
Son prix de vente est de 245 000 €.
Contactez notre agence (WALRYCK Franck : O6-80-22-74-64) pour toute question sur ce bien. Maisons France Confort Béthune vous accompagne à toutes les étapes de votre projet et dans toutes vos démarches.
Mentions légales
Terrain proposé par un partenaire foncier selon disponibilités et autorisation de publicité au prix de 62 000 €. Hors droit d'enregistrement et frais de notaire. Terrain + Maison proposés au prix de 245 000 € (Hors branchements et raccordements, papiers peints, peintures, revêtement de sol dans les chambres. Tarif modifiable sans préavis). Etiquette énergie : A. Différents modèles disponibles pour ce terrain. Assurances et garanties du constructeur (RC professionnelle, décennale, dommage ouvrage, garantie de remboursement de l'acompte, livraison à prix et délai convenu) : https://www.maisons-france-confort.fr/mentions-legales/. HEXAOM Services est enregistré auprès de l'ORIAS en tant que Courtier en financement, Niveau 1, sous le numéro 14001345.Agence Maisons France Confort de Béthune (62400)
- Téléphone :
- 03 21 02 07 45
- Adressse :
- 112 bd Jean Moulin
62400 Béthune, France
