Maison neuve à
Annezin
(62232) Référence :
FW2493274_5
Prix du projet : Maison avec Terrain
prix 280 000 €
- 8 pièces
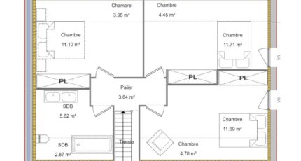
- 4 chambres
- Surface maison 115 m2
VENTE d'une maison F8 (115 m²) à Annezin
IDÉALEMENT SITUÉE - MAISON 8 PIÈCES NEUVE
En vente aux portes de Béthune, découvrez cette maison de 8 pièces de 115 m² idéalement située dans Annezin (62232). Elle propose quatre chambres, une cuisine et deux salles de bains.
Le terrain du bien s'étend sur 610 m².
C'est une maison de 2 niveaux. Elle est neuve.
Elle se trouve dans un quartier attractif. Il y a quatre établissements scolaires à moins de 10 minutes à pied. Côté transports, on trouve huit gares à moins de 10 minutes en voiture. L'autoroute A26 est accessible à 2 km. Il y a un tennis, un bassin de natation, des commerces, un bureau de poste et une boucherie-charcuterie à quelques minutes à peine.
Son prix de vente est de 280 000 €.
Contactez notre agence (WALRYCK Franck : 06-80-22-74-64) pour toute information sur la maison, sur les modalités de vente ou sur les démarches à suivre. Maisons France Confort Béthune est là pour vous accompagner à toutes les étapes de l'achat.
Mentions légales
Terrain proposé par un partenaire foncier selon disponibilités et autorisation de publicité au prix de 60 500 €. Hors droit d'enregistrement et frais de notaire. Terrain + Maison proposés au prix de 280 000 € (Hors branchements et raccordements, papiers peints, peintures, revêtement de sol dans les chambres. Tarif modifiable sans préavis). Etiquette énergie : A. Différents modèles disponibles pour ce terrain. Assurances et garanties du constructeur (RC professionnelle, décennale, dommage ouvrage, garantie de remboursement de l'acompte, livraison à prix et délai convenu) : https://www.maisons-france-confort.fr/mentions-legales/. HEXAOM Services est enregistré auprès de l'ORIAS en tant que Courtier en financement, Niveau 1, sous le numéro 14001345.Agence Maisons France Confort de Béthune (62400)
- Téléphone :
- 03 21 02 07 45
- Adressse :
- 112 bd Jean Moulin
62400 Béthune, France
