Maison neuve à 
  Arganchy
 (14400)  Référence :
 JS2322601_4 
Prix du projet : Maison avec Terrain
prix 211 000 €
- 5 pièces
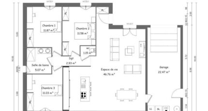
- 3 chambres
- Surface maison 95 m2
VENTE d'une maison T5 (95 m²) à Bayeux
IDÉALEMENT SITUÉE - MAISON 5 PIÈCES NEUVE
En vente à 9 km de la Manche et à quelques kilomètres de Caen, idéalement située dans Bayeux (14400), laissez vous charmer par cette maison de 5 pièces de plain-pied de 95 m² et de 301 m² de terrain. Conçue de plain-pied, elle dispose de trois chambres, d'une cuisine et de deux salles de bains.
Cette maison est neuve.
La maison est située dans un quartier convoité. On trouve tous les types d'établissements scolaires (de la maternelle au lycée) à moins de 10 minutes à pied, tout comme une structure d'accueil pour les tout-petits. Niveau transports en commun, il y a la gare Bayeux à proximité. La nationale N13 est accessible à 3 km. On trouve une bibliothèque, des commerces, des boulangeries, un supermarché, une supérette et des boucheries-charcuteries dans les environs. Enfin, 2 marchés animent le quartier.
Elle est proposée à l'achat pour 211 000 €.
Contactez Emilie HUE (06-29-81-46-66) pour plus d'informations sur la maison ou sur les démarches à suivre. Maisons France Confort Bayeux est là pour vous accompagner dans tous vos projets immobiliers.
Annonce proposée par un Agent Commercial Partenaire.
Mentions légales
Terrain proposé par un partenaire foncier selon disponibilités et autorisation de publicité au prix de 56 000 €. Hors droit d'enregistrement et frais de notaire. Maison proposée, avec un contrat de construction de maison individuelle, dans le cadre de la loi du 19/12/1990, au prix de 155 000 € (Hors branchements et raccordements, papiers peints, peintures, revêtement de sol dans les chambres, qui sont chiffrés dans les travaux qui restent à charge du client. Tarif modifiable sans préavis). Étiquette énergie : A. Différents modèles disponibles pour ce terrain. Assurances et garanties du constructeur comprises (RC professionnelle, décennale, dommage ouvrage).Agence Maisons France Confort de Bayeux (14400)
- Téléphone :
- 02 31 51 20 91
- Adressse :
-  2, rue Saint Loup
 14400 Bayeux, France
 
  
  
  
  
  
 