Maison neuve à 
  Arganchy
 (14400)  Référence :
 JS2322601_5 
Prix du projet : Maison avec Terrain
prix 256 000 €
- 7 pièces
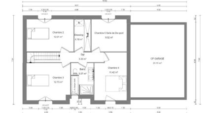
- 5 chambres
- Surface maison 120 m2
VENTE d'une maison T7 (120 m²) à Bayeux
IDÉALEMENT SITUÉE - MAISON 7 PIÈCES NEUVE
En vente à 9 km de la Manche et à quelques kilomètres de Caen, idéalement située dans Bayeux (14400), nous vous présentons cette maison de 7 pièces de 120 m² et de 301 m² de terrain.
Cette maison possède 2 niveaux. Elle dispose de cinq chambres, d'une cuisine et de deux salles de bains. Cette maison est neuve.
La propriété est située dans un quartier recherché. Des établissements scolaires (de la maternelle au lycée) sont implantés à moins de 10 minutes à pied, tout comme une crèche. Niveau transports, il y a la gare Bayeux à quelques pas du bien. Il y a un accès à la nationale N13 à 3 km. On trouve une bibliothèque, des commerces, des boulangeries, un supermarché, des boucheries-charcuteries et trois épiceries dans les environs. 2 marchés animent le quartier.
Elle est à vendre pour la somme de 256 000 €.
Contactez notre agence (Emilie HUE : 06-29-81-46-66) pour tout renseignement sur la maison ou sur les démarches à suivre. Maisons France Confort Bayeux est là pour vous accompagner dans tous vos projets immobiliers.
Annonce proposée par un Agent Commercial Partenaire.
Mentions légales
Terrain proposé par un partenaire foncier selon disponibilités et autorisation de publicité au prix de 56 000 €. Hors droit d'enregistrement et frais de notaire. Maison proposée, avec un contrat de construction de maison individuelle, dans le cadre de la loi du 19/12/1990, au prix de 200 000 € (Hors branchements et raccordements, papiers peints, peintures, revêtement de sol dans les chambres, qui sont chiffrés dans les travaux qui restent à charge du client. Tarif modifiable sans préavis). Étiquette énergie : A. Différents modèles disponibles pour ce terrain. Assurances et garanties du constructeur comprises (RC professionnelle, décennale, dommage ouvrage).Agence Maisons France Confort de Bayeux (14400)
- Téléphone :
- 02 31 51 20 91
- Adressse :
-  2, rue Saint Loup
 14400 Bayeux, France
 
  
  
  
  
  
 