Maison neuve à 
  Arganchy
 (14400)  Référence :
 JS2322601_8 
Prix du projet : Maison avec Terrain
prix 221 000 €
- 6 pièces
- 4 chambres
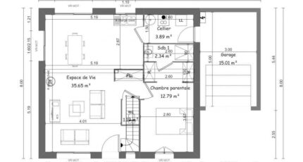
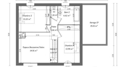
- Surface maison 110 m2
Bayeux : maison T6 (110 m²) à vendre
IDÉALEMENT SITUÉE - MAISON 6 PIÈCES NEUVE
À 9 km de la Manche et à 26 km de Caen, découvrez cette maison de 6 pièces de 110 m² idéalement située dans Bayeux (14400). Elle comporte quatre chambres, une cuisine et deux salles de bains.
Le terrain de la propriété est de 301 m².
C'est une maison de 2 niveaux. Elle est neuve.
Cette maison se trouve dans un secteur prisé. Tous les types d'écoles (de la maternelle au lycée) sont implantés à moins de 10 minutes à pied, tout comme une crèche. Niveau transports en commun, il y a la gare Bayeux dans un rayon de 1 km. Il y a un accès à la nationale N13 à 3 km. On trouve une bibliothèque, des commerces, des boulangeries, un supermarché, un bureau de poste et trois épiceries à quelques minutes du bien. Enfin, 2 marchés animent les environs.
Elle est proposée à l'achat pour 221 000 €.
N'hésitez pas à prendre contact avec notre agence (HUE Emilie : 06-29-81-46-66) pour toute question sur la maison, sur les modalités de vente et sur les démarches à suivre. Concrétisez vos projets immobiliers avec Maisons France Confort Bayeux.
Annonce proposée par un Agent Commercial Partenaire.
Mentions légales
Terrain proposé par un partenaire foncier selon disponibilités et autorisation de publicité au prix de 56 000 €. Hors droit d'enregistrement et frais de notaire. Maison proposée, avec un contrat de construction de maison individuelle, dans le cadre de la loi du 19/12/1990, au prix de 165 000 € (Hors branchements et raccordements, papiers peints, peintures, revêtement de sol dans les chambres, qui sont chiffrés dans les travaux qui restent à charge du client. Tarif modifiable sans préavis). Étiquette énergie : A. Différents modèles disponibles pour ce terrain. Assurances et garanties du constructeur comprises (RC professionnelle, décennale, dommage ouvrage).Agence Maisons France Confort de Bayeux (14400)
- Téléphone :
- 02 31 51 20 91
- Adressse :
-  2, rue Saint Loup
 14400 Bayeux, France
 
  
  
  
  
 