Maison neuve à
Argenteuil
(95100) Référence :
EA2477366_1
Prix du projet : Maison avec Terrain
prix 799 000 €
- 8 pièces
- 5 chambres
- Surface maison 155 m2
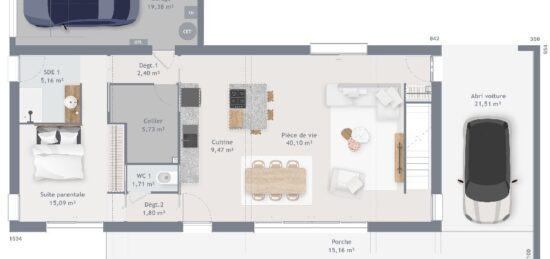
Votre conseiller Maisons France Confort M.AKKUS Erkan est à votre disposition pour vous accompagner dans votre projet de construction de maison personnalisée. Nouveau! Projet de construction à ARGENTEUIL secteur très prisé et résidentiel proche gare. Sur ce terrain plat de 810m2. Maison contemporaine de 5 chambres 155m2 avec une belle entrée comprenant un vestiaire, grand et lumineux séjour traversant, cuisine ouverte avec un cellier, WC et une chambre. A l'étage, 4 chambres confortables dont une suite parentale avec dressing et salle d'eau, une salle de bain commune et un wc séparé. Nombreux rangement et une belle distribution. Coût total du projet 799.000€ (Frais de compteurs, de branchements, de raccordements et frais de notaire inclus) contactez votre conseiller M.AKKUS Erkan au 07/82/30/58/68
Annonce proposée par un Agent Commercial Partenaire.
Mentions légales
Terrain proposé par un partenaire foncier selon disponibilités et autorisation de publicité au prix de 475 000 €. Hors droit d'enregistrement et frais de notaire. Terrain + Maison proposés au prix de 799 000 € (Hors branchements et raccordements, papiers peints, peintures, revêtement de sol dans les chambres. Tarif modifiable sans préavis). Etiquette énergie : A. Différents modèles disponibles pour ce terrain. Assurances et garanties du constructeur (RC professionnelle, décennale, dommage ouvrage, garantie de remboursement de l'acompte, livraison à prix et délai convenu) : https://www.maisons-france-confort.fr/mentions-legales/. HEXAOM Services est enregistré auprès de l'ORIAS en tant que Courtier en financement, Niveau 1, sous le numéro 14001345.Agence Maisons France Confort de Conflans-Sainte-Honorine (78700)
- Téléphone :
- 01 34 46 20 83
- Adressse :
- 55/57 rue Maurice Berteaux
78700 Conflans-Sainte-Honorine, France
