Maison neuve à
Argenton-sur-Creuse (36200) Référence : TM2422403_10

Prix du projet : Maison avec Terrain

prix 315 000 €

  • 4 pièces
  • 3 chambres
  • Surface maison 110 m2

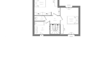
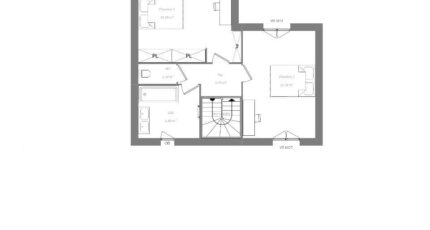
VENTE d'une maison F4 (110 m²) à Argenton-sur-Creuse
PROCHE DE CHÂTEAUROUX - MAISON 4 PIÈCES NEUVE
À 29 km de Châteauroux, nous sommes ravis de vous présenter cette maison de 4 pièces de 110 m² et de 700 m² de terrain à Argenton-sur-Creuse (36200).
C'est une maison de 2 niveaux. Elle propose trois chambres, une cuisine et deux salles de bains. La maison est neuve.
Il y a des écoles de tous niveaux à moins de 10 minutes à pied. Côté transports, on trouve la gare Argenton-sur-Creuse à proximité. L'autoroute A20 est accessible à 3 km. Il y a un bassin de natation, des commerces, des boulangeries, deux supermarchés, un bureau de poste et une épicerie dans les environs. Le marché Rue du Point du Jour anime les environs tous les samedis matin.
Elle est proposée à l'achat pour 315 000 €.
Prenez contact avec notre agence (MANIERE Thomas : 06-15-51-71-54) pour plus de renseignements sur cette maison ou sur les démarches à suivre.

Mentions légales

Terrain proposé par un partenaire foncier selon disponibilités et autorisation de publicité au prix de 25 000 €. Hors droit d'enregistrement et frais de notaire. Terrain + Maison proposés au prix de 315 000 € (Hors branchements et raccordements, papiers peints, peintures, revêtement de sol dans les chambres. Tarif modifiable sans préavis). Etiquette énergie : A. Différents modèles disponibles pour ce terrain. Assurances et garanties du constructeur (RC professionnelle, décennale, dommage ouvrage, garantie de remboursement de l'acompte, livraison à prix et délai convenu) : https://www.maisons-brunopetit.fr/mentions-legales/.

Contactez l'agence de Châteauroux

02 54 22 66 24

    * Champs obligatoires

    Vos informations sont traitées par HEXAOM et transmises à un conseiller commercial qui vous contactera afin de répondre à votre demande. Les plans et images présentés sur notre site sont la propriété d’HEXAOM et ne peuvent pas être reproduits sans son accord. Pour retrouver notre politique de protection des données personnelles et exercer vos droits conformément à la « loi informatique et liberté » cliquez-ici.