Maison neuve à
Arpajon-sur-Cère
(15130) Référence :
PM2422975_1
Prix du projet : Maison avec Terrain
prix 353 000 €
- 6 pièces
- 4 chambres
- Surface maison 111 m2
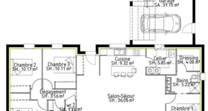
Cette future villa de plain-pied, d'une superficie habitable de 111 m² avec un double garage de 37 m² a été pensée pour répondre à toutes vos attentes. Avec ses 4 chambres spacieuses, dont une suite parentale comprenant un dressing et une salle d'eau, elle offre un espace de vie généreux et fonctionnel de 45 m², idéal pour accueillir votre famille et partager des moments inoubliables. Sur un terrain plat de 829 m², dans un environnement paisible et à proximité immédiate des commerces, se dressera bientôt votre nouvelle demeure. Imaginez-vous déjà profiter de ce cadre idyllique avec une terrasse de 22.50 m² exposée Sud/Est, où le calme règne en maître et où chaque jour est synonyme de confort et de sérénité.
Ne laissez pas passer cette opportunité unique de construire la maison de vos rêves dans un cadre enchanteur. Contactez-nous dès maintenant à l'agence Maisons Partout (04 71 48 17 17) pour en savoir plus et commencez à imaginer votre nouvelle vie dans cette villa d'exception.
Mentions légales
Terrain proposé par un partenaire foncier selon disponibilités et autorisation de publicité au prix de 59 100 €. Hors droit d'enregistrement et frais de notaire. Terrain + Maison proposés au prix de 353 000 € (Hors branchements et raccordements, papiers peints, peintures, revêtement de sol dans les chambres. Tarif modifiable sans préavis). Etiquette énergie : A. Différents modèles disponibles pour ce terrain. Assurances et garanties du constructeur (RC professionnelle, décennale, dommage ouvrage, garantie de remboursement de l'acompte, livraison à prix et délai convenu) : https://www.maisonspartout.fr/informations-legales/.Agence Maisons Partout de Aurillac (15000)
- Téléphone :
- 04 71 48 17 17
- Adressse :
- 15 bis avenue des Volontaires
15000 Aurillac, France
