Maison neuve à
Arros-de-Nay (64800) Référence : JNA2423694_1

Prix du projet : Maison avec Terrain

prix 210 000 €

  • 4 pièces
  • 3 chambres
  • Surface maison 85 m2

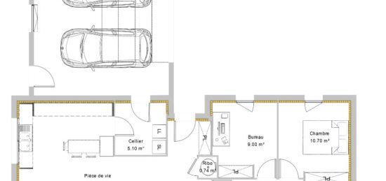
VENTE d'une maison T4 (85 m²) à Arros-de-Nay
EMPLACEMENT PRIVILÉGIÉ - MAISON 4 PIÈCES NEUVE
À vendre : située à 39 km de la frontière espagnole et à 16 km de Pau, laissez vous charmer par cette maison de 4 pièces de plain-pied de 85 m² et de 640 m² de terrain, bénéficiant d'un emplacement d'exception dans Arros-de-Nay (64800). Son intérieur compte trois chambres, une cuisine et une salle de bains.
Cette maison est neuve.
Elle se trouve dans un secteur convoité. Une école primaire y est implantée et une crèche. Côté transports, il y a les gares Coarraze-Nay, Assat et Gan à moins de 10 minutes en voiture. Il y a un accès à l'autoroute A64 à 11 km. On trouve un tennis et une supérette dans les environs.
Elle est à vendre pour la somme de 210 000 €.
N'hésitez pas à prendre contact avec Jean-Noel ANDERE (05-59-32-12-24) pour plus de renseignements sur cette maison, sur les modalités de vente ou sur les démarches à suivre. Maisons Bruno Petit GHPA Lons est là pour vous accompagner à toutes les étapes de l'achat.

Mentions légales

Terrain proposé par un partenaire foncier selon disponibilités et autorisation de publicité au prix de 65 000 €. Hors droit d'enregistrement et frais de notaire. Terrain + Maison proposés au prix de 210 000 € (Hors branchements et raccordements, papiers peints, peintures, revêtement de sol dans les chambres. Tarif modifiable sans préavis). Etiquette énergie : A. Différents modèles disponibles pour ce terrain. Assurances et garanties du constructeur (RC professionnelle, décennale, dommage ouvrage, garantie de remboursement de l'acompte, livraison à prix et délai convenu) : https://www.maisons-bruno-petit.com/mentions-legales/.

Contactez l'agence de Lons

05 59 32 12 24

    * Champs obligatoires

    Vos informations sont traitées par HEXAOM et transmises à un conseiller commercial qui vous contactera afin de répondre à votre demande. Les plans et images présentés sur notre site sont la propriété d’HEXAOM et ne peuvent pas être reproduits sans son accord. Pour retrouver notre politique de protection des données personnelles et exercer vos droits conformément à la « loi informatique et liberté » cliquez-ici.