Maison neuve à
Artigues-près-Bordeaux (33370) Référence : SM2399036_1

Prix du projet : Maison avec Terrain

prix 551 000 €

  • 5 pièces
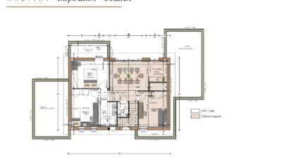
  • 4 chambres
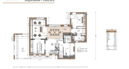
  • Surface maison 140 m2

Proche de Bordeaux sur la commune d'Artigues pres de Bordeaux 33370

Dans un environnement résidentiel prisé, niché au coeur d'un quartier cossu composé de superbes propriétés, ce terrain viabilisé de 800 m², parfaitement au calme et sans aucune nuisance sonore, accueille un projet de construction unique.

Imaginée pour conjuguer raffinement et confort familial, cette maison contemporaine de 130 m² habitables séduit par son architecture résolument moderne, aux lignes épurées et à la luminosité généreuse. Son agencement prévoit 4 chambres, dont une suite parentale avec salle d'eau privative, ainsi que deux autres chambres ouvrant sur un balcon et une salle de bain supplémentaire.
Pour plus d'espace, le plan reste entièrement personnalisable, permettant d'adapter la surface et l'aménagement à vos envies.

Sa façade élégante et aérée accueille un carport discret, tandis que son style ultra contemporain s'intègre harmonieusement dans ce décor verdoyant et préservé.

Ce projet offre une opportunité rare : celle de bâtir la maison de vos rêves dans l'un des secteurs les plus recherchés de la rive droite bordelaise.

Un cadre privilégié à découvrir sans tarder.

Prenez contact avec Sébastien MONACELLI (O7-77-86-55-46) pour toute information sur cette maison ou sur les démarches à suivre. So'9 Habitat Le Bouscat vous accompagne à toutes les étapes de votre projet et dans tous vos projets immobiliers.
Le Groupe HDV est reconnu pour son savoir-faire, son accompagnement de qualité et ses prestations Haut de Gamme.

Mentions légales

Terrain proposé par un partenaire foncier selon disponibilité dans le cadre d’un projet de construction avec So'9 Habitat. Les descriptions, photographies, surfaces et prix illustrant l'annonce sont fournies à titre indicatif et ne sont pas contractuels. Non soumis au DPE. Différents modèles disponibles.

Contactez l'agence de Le Bouscat

05 56 04 87 69

    * Champs obligatoires

    Vos informations sont traitées par HEXAOM et transmises à un conseiller commercial qui vous contactera afin de répondre à votre demande. Les plans et images présentés sur notre site sont la propriété d’HEXAOM et ne peuvent pas être reproduits sans son accord. Pour retrouver notre politique de protection des données personnelles et exercer vos droits conformément à la « loi informatique et liberté » cliquez-ici.