Maison neuve à
Arveyres
(33500) Référence :
DL2453026_3
Prix du projet : Maison avec Terrain
prix 297 500 €
- 4 pièces
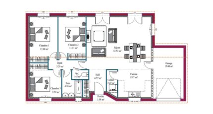
- 3 chambres
- Surface maison 90 m2
David LOPES des maisons MCA vous propose d'adapter le modèle Optima, sur ce joli terrain de 600m², sur la commune d'arveyres à moins de 10 minutes de Libourne.
Cette maison de plain pied, dispose d'un hall d'entrée avec placard et wc séparés; une belle pièce de vie avec cuisine ouverte et cellier attenant, pour une surface totale d'environ 37m2. Le coin nuit est composé de 3 chambres avec placards, et une salle de bains.
Vous serez séduits par ses volumes optimisés et sa fonctionnalité.
Le prix affiché comprend le terrain, les frais de notaire, les frais de raccordement, et cette maison livrée prête à décorer.
N'attendez plus, contactez vite votre conseiller David LOPES au O6-5O-88-58-8O à l'agence MCA de Libourne, afin qu'il vous guide dans les démarches et vous accompagne dans ce projet de construction personnalisé.
Mentions légales
Idée de réalisation en modèle prêt à décorer sur l'un de nos terrains partenaires, sous réserve de disponibilités. Voir détails en agence.Agence Maisons de la Côte Atlantique de Libourne (33500)
- Téléphone :
- 05 57 48 72 88
- Adressse :
- 99, Avenue du Général de Gaulle
33500 Libourne, France
