Maison neuve à
Attainville
(95570) Référence :
JR2417078_4
Prix du projet : Maison avec Terrain
prix 459 000 €
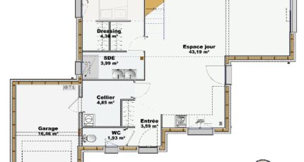
- 6 pièces
- 5 chambres
- Surface maison 114 m2
Maison d'exception, élégante et moderne avec des prestations haut de gamme.
Proposé par JOACHIM REICH et idéal pour concrétiser votre rêve de maison neuve sur un terrain proche de toutes les commodités.
Cette maison a votre image offre des prestations modernes, une conception économe en énergie conforme à la norme RE 2020. « CETTE MAISON RE 2020 CONSOMME 70% DE MOINS Q'UNE MAISON DE 10 ANS »
Contactez-moi pour accéder aux informations dont vous avez besoin, mon implication ainsi que mon accompagnement dans votre projet jusqu'à la remise de vos clés, est aujourd'hui reconnu par plus de 300 clients en Picardie, qui m'ont confié le rêve d'une vie :
N'hésitez pas à me contacter du lundi au samedi au /0/7/6/5/8/0/7/4/0/7 Joachim REICH
Exemple pour ce projet de maison avec ses 5 belles chambres, un séjour ouvert sur la cuisine le tout accompagné d'un garage qui peut être proposé en option et de prestations premiums haut de gamme pour un budget à partir de 459000 euros
Mentions légales
Terrain proposé par un partenaire foncier selon disponibilités et autorisation de publicité au prix de 190 000 €. Hors droit d'enregistrement et frais de notaire. Terrain + Maison proposés au prix de 459 000 € (Hors branchements et raccordements, papiers peints, peintures, revêtement de sol dans les chambres. Tarif modifiable sans préavis). Etiquette énergie : A. Différents modèles disponibles pour ce terrain. Assurances et garanties du constructeur (RC professionnelle, décennale, dommage ouvrage, garantie de remboursement de l'acompte, livraison à prix et délai convenu) : https://www.maisons-france-confort.fr/mentions-legales/. HEXAOM Services est enregistré auprès de l'ORIAS en tant que Courtier en financement, Niveau 1, sous le numéro 14001345.Agence Maisons France Confort de Compiègne (60200)
- Téléphone :
- 03 44 86 81 34
- Adressse :
- 47, cours Guynemer
60200 Compiègne, France
