Maison neuve à
Attignat (01340) Référence : SG2610_3

Prix du projet : Maison avec Terrain

prix 272 500 €

  • 5 pièces
  • 4 chambres
  • Surface maison 100 m2

Attignat : maison de 5 pièces (100 m²) en vente
PROCHE DE BOURG-EN-BRESSE - MAISON 5 PIÈCES NEUVE
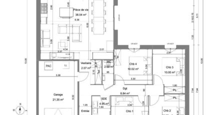
En vente à 10 km de Bourg-en-Bresse, à Attignat (01340), nous vous présentons cette maison de 5 pièces de plain-pied de 100 m² et de 401 m² de terrain. Son intérieur inclut quatre chambres, une cuisine et une salle de bains.
La maison est neuve.
Il y a des écoles maternelles et élémentaires à moins de 10 minutes à pied et, comme l'École Primaire Privée. Côté transports, on trouve la gare Polliat à moins de 10 minutes en voiture. Les autoroutes A40 et A39 sont accessibles à moins de 8 km. Il y a un tennis, trois commerces, deux boulangeries, une boucherie-charcuterie et une supérette à proximité du logement.
Son prix de vente est de 272 500 €.
Contactez notre agence (GABRILLARGUES Sébastien : 06-81-77-73-67) pour plus de renseignements sur cette maison ou sur les modalités de vente. Maisons France Confort Bourg-en-Bresse est là pour vous accompagner dans tous vos projets immobiliers.

Annonce proposée par un Agent Commercial Partenaire.

Mentions légales

Terrain proposé par un partenaire foncier selon disponibilités et autorisation de publicité au prix de 60 000 €. Hors droit d'enregistrement et frais de notaire. Terrain + Maison proposés au prix de 272 500 € (Hors branchements et raccordements, papiers peints, peintures, revêtement de sol dans les chambres. Tarif modifiable sans préavis). Etiquette énergie : A. Différents modèles disponibles pour ce terrain. Assurances et garanties du constructeur (RC professionnelle, décennale, dommage ouvrage, garantie de remboursement de l'acompte, livraison à prix et délai convenu) : https://www.maisons-france-confort.fr/mentions-legales/. HEXAOM Services est enregistré auprès de l'ORIAS en tant que Courtier en financement, Niveau 1, sous le numéro 14001345.

Contactez l'agence de Bourg-en-Bresse

04 74 14 04 47

    * Champs obligatoires

    Vos informations sont traitées par HEXAOM et transmises à un conseiller commercial qui vous contactera afin de répondre à votre demande. Les plans et images présentés sur notre site sont la propriété d’HEXAOM et ne peuvent pas être reproduits sans son accord. Pour retrouver notre politique de protection des données personnelles et exercer vos droits conformément à la « loi informatique et liberté » cliquez-ici.