Maison neuve à
Aubais
(30250) Référence :
LR2403912_3
Prix du projet : Maison avec Terrain
prix 411 000 €
- 5 pièces
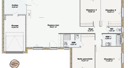
- 4 chambres
- Surface maison 113 m2
Maison de 5 pièces (113 m²) à vendre à Aubais
EMPLACEMENT PRIVILÉGIÉ - MAISON 5 PIÈCES NEUVE
En vente : localisée dans un village de la Vaunage, situé à 10 minutes de Sommières, 20 minutes de Lunel, 25 minutes de Nîmes, nous vous présentons cette maison de 5 pièces de plain-pied de 113 m² bénéficiant d'un emplacement d'exception dans Aubais (30250).
Son intérieur se divise en quatre chambres, une cuisine et deux salles de bains. Cette maison est neuve.
Le terrain du bien s'étend sur 457 m².
La maison est située dans un quartier convoité. Des écoles maternelles et élémentaires y sont implantées et une structure d'accueil pour les tout-petits. Côté transports, on trouve six gares à moins de 10 minutes en voiture. L'autoroute A9 est accessible à 4 km. Il y a une bibliothèque, une épicerie et un bureau de poste à quelques minutes à peine.
Son prix de vente est de 411 000 €.
Contactez notre agence (Lionel ROMERA : 06-30-39-77-79) pour toute question sur la propriété, sur les démarches à suivre ou sur les modalités de vente. Concrétisez vos projets immobiliers avec Maisons France Confort Montpellier.
Annonce proposée par un Agent Commercial Partenaire.
Mentions légales
Terrain proposé par un partenaire foncier selon disponibilités et autorisation de publicité au prix de 174 900 €. Hors droit d'enregistrement et frais de notaire. Terrain + Maison proposés au prix de 411 000 € (Hors branchements et raccordements, papiers peints, peintures, revêtement de sol dans les chambres. Tarif modifiable sans préavis). Etiquette énergie : A. Différents modèles disponibles pour ce terrain. Assurances et garanties du constructeur (RC professionnelle, décennale, dommage ouvrage, garantie de remboursement de l'acompte, livraison à prix et délai convenu) : https://www.maisons-france-confort.fr/mentions-legales/. HEXAOM Services est enregistré auprès de l'ORIAS en tant que Courtier en financement, Niveau 1, sous le numéro 14001345.Agence Maisons France Confort de Montpellier (34000)
- Téléphone :
- 04 67 64 85 11
- Adressse :
- 48, impasse Louis Ferdinand Herold
34000 Montpellier, France
