Maison neuve à
Aubais
(30250) Référence :
LR2431105_2
Prix du projet : Maison avec Terrain
prix 385 900 €
- 6 pièces
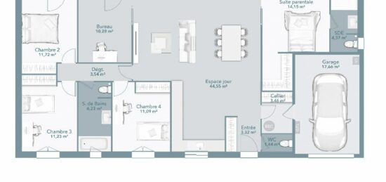
- 4 chambres
- Surface maison 95 m2
VENTE d'une maison de 6 pièces (115 m²) à Aubais
IDÉALEMENT SITUÉE - MAISON 6 PIÈCES NEUVE
En vente : à 23 km de la mer Méditerranée et à quelques kilomètres de Montpellier, Maisons France Confort Montpellier vous propose cette maison de 6 pièces de 95 m² sur 431 m² de terrain idéalement située dans Aubais (30250).
Il s'agit d'une maison de 2 niveaux. Son intérieur dispose de quatre chambres, d'une cuisine et de deux salles de bains. La maison est neuve.
Cette maison se trouve dans un secteur recherché. Des établissements scolaires primaires y sont implantés et une structure d'accueil pour la petite enfance. Niveau transports, il y a six gares à moins de 10 minutes en voiture. L'autoroute A9 est accessible à 4 km. On trouve une bibliothèque, une épicerie et un bureau de poste à proximité.
Son prix de vente est de 385 900 €.
N'hésitez pas à prendre contact avec notre agence (Lionel ROMERA : 06-30-39-77-79) pour toute question sur la maison.
Annonce proposée par un Agent Commercial Partenaire.
Mentions légales
Terrain proposé par un partenaire foncier selon disponibilités et autorisation de publicité au prix de 167 900 €. Hors droit d'enregistrement et frais de notaire. Terrain + Maison proposés au prix de 385 900 € (Hors branchements et raccordements, papiers peints, peintures, revêtement de sol dans les chambres. Tarif modifiable sans préavis). Etiquette énergie : A. Différents modèles disponibles pour ce terrain. Assurances et garanties du constructeur (RC professionnelle, décennale, dommage ouvrage, garantie de remboursement de l'acompte, livraison à prix et délai convenu) : https://www.maisons-france-confort.fr/mentions-legales/. HEXAOM Services est enregistré auprès de l'ORIAS en tant que Courtier en financement, Niveau 1, sous le numéro 14001345.Agence Maisons France Confort de Montpellier (34000)
- Téléphone :
- 04 67 64 85 11
- Adressse :
- 48, impasse Louis Ferdinand Herold
34000 Montpellier, France
