Maison neuve à
Auch (32000) Référence : SP2489625_4

Prix du projet : Maison avec Terrain

prix 345 000 €

  • 6 pièces
  • 4 chambres
  • Surface maison 115 m2

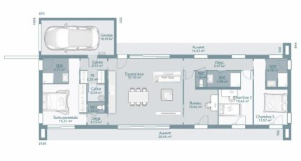
Maison de 6 pièces (115 m²) en vente à Auch
MAISON 6 PIÈCES NEUVE
À vendre : laissez vous charmer par à Auch (32000), cette maison de 6 pièces de plain-pied de 115 m² et de 840 m² de terrain.
Son intérieur offre quatre chambres, une cuisine et deux salles de bains. Cette maison est neuve.
Des établissements scolaires de tous types sont implantés à moins de 10 minutes à pied. Niveau transports, on trouve la gare Auch à moins de 10 minutes en voiture. Il y a un tennis, une bibliothèque, un bowling, des commerces, trois boucheries-charcuteries, un bureau de poste et des épiceries à proximité.
Elle est proposée à l'achat pour 345 000 €.
Contactez nous pour tout renseignement sur cette maison, sur les modalités de vente ou sur les démarches à suivre.

Annonce proposée par un Agent Commercial Partenaire.

Mentions légales

Terrain proposé par un partenaire foncier selon disponibilités et autorisation de publicité au prix de 49 000 €. Hors droit d'enregistrement et frais de notaire. Terrain + Maison proposés au prix de 345 000 € (Hors branchements et raccordements, papiers peints, peintures, revêtement de sol dans les chambres. Tarif modifiable sans préavis). Etiquette énergie : A. Différents modèles disponibles pour ce terrain. Assurances et garanties du constructeur (RC professionnelle, décennale, dommage ouvrage, garantie de remboursement de l'acompte, livraison à prix et délai convenu) : https://www.maisons-france-confort.fr/mentions-legales/. HEXAOM Services est enregistré auprès de l'ORIAS en tant que Courtier en financement, Niveau 1, sous le numéro 14001345.

Contactez l'agence de Tournefeuille

05 61 16 47 77

    * Champs obligatoires

    Vos informations sont traitées par HEXAOM et transmises à un conseiller commercial qui vous contactera afin de répondre à votre demande. Les plans et images présentés sur notre site sont la propriété d’HEXAOM et ne peuvent pas être reproduits sans son accord. Pour retrouver notre politique de protection des données personnelles et exercer vos droits conformément à la « loi informatique et liberté » cliquez-ici.