Maison neuve à
Aumagne
(17770) Référence :
PO2483525_3
Prix du projet : Maison avec Terrain
prix 348 000 €
- 7 pièces
- 5 chambres
- Surface maison 145 m2
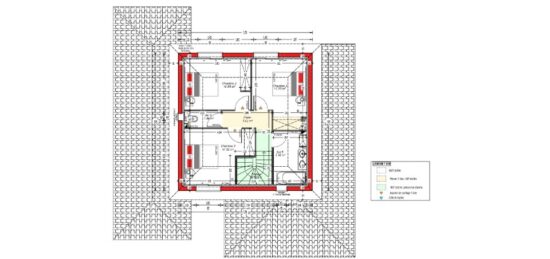
VENTE d'une maison F7 (145 m²) à Aumagne
IDÉALEMENT SITUÉE - MAISON 7 PIÈCES NEUVE
À vendre : localisée à quelques kilomètres de Saintes, Maisons MCA Saintes vous présente cette maison de 7 pièces de plain-pied de 145 m², idéalement située dans Aumagne (17770). Elle propose cinq chambres, une cuisine et deux salles de bains.
Le terrain de cette maison est de 8 840 m².
La maison est neuve.
Cette maison est située dans un secteur attractif. On trouve l'École Élémentaire Aumagne à moins de 10 minutes à pied. L'autoroute A10 et la nationale N141 sont accessibles à moins de 20 km. Il y a un tennis et une bibliothèque à proximité du bien.
Son prix de vente est de 348 000 €.
Contactez Patrick OLIVRÉ (tél : O6-72-31-16-34) pour tout renseignement sur la maison, sur les modalités de vente ou sur les démarches à suivre.
Mentions légales
Idée de réalisation en modèle prêt à décorer sur l'un de nos terrains partenaires, sous réserve de disponibilités. Voir détails en agence.Agence Maisons de la Côte Atlantique de Saintes (17100)
- Téléphone :
- 05 46 74 88 74
- Adressse :
- 5, Rue Pierre et Marie Curie
17100 Saintes, France
