Maison neuve à
Auneau (28700) Référence : YB2428430_1

Prix du projet : Maison avec Terrain

prix 210 000 €

  • 6 pièces
  • 4 chambres
  • Surface maison 91 m2

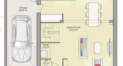
Maison F6 (91 m²) à vendre à Auneau
IDÉALEMENT SITUÉE - MAISON 6 PIÈCES NEUVE
À vendre : localisée à 20 km de Chartres, idéalement située dans Auneau (28700), Maisons France Confort Limay vous présente cette maison de 6 pièces de 91 m² avec vue sur espace vert.
Il s'agit d'une maison de 2 niveaux. Son intérieur se divise en quatre chambres, une cuisine et une salle de bains. La maison est neuve.
Le terrain du bien est de 400 m².
La maison se trouve dans un secteur attractif. Plusieurs écoles (maternelle, élémentaire, primaire et collège) sont implantées à moins de 10 minutes à pied. Niveau transports, on trouve la gare Auneau à moins de 10 minutes en voiture. Les autoroutes A11 et A10 et les nationales N191 et N10 sont accessibles à moins de 10 km. Il y a un tennis, une bibliothèque, trois commerces, trois boulangeries, un supermarché, deux épiceries et une boucherie-charcuterie à quelques minutes. Enfin, le marché Place du marché anime le quartier chaque vendredi matin.
Elle est à vendre pour la somme de 210 000 €.
Contactez notre agence (BOUSELSELA Yassine : 06-14-36-81-09) pour toute question sur la maison.

Mentions légales

Terrain proposé par un partenaire foncier selon disponibilités et autorisation de publicité au prix de 60 000 €. Hors droit d'enregistrement et frais de notaire. Terrain + Maison proposés au prix de 210 000 € (Hors branchements et raccordements, papiers peints, peintures, revêtement de sol dans les chambres. Tarif modifiable sans préavis). Etiquette énergie : A. Différents modèles disponibles pour ce terrain. Assurances et garanties du constructeur (RC professionnelle, décennale, dommage ouvrage, garantie de remboursement de l'acompte, livraison à prix et délai convenu) : https://www.maisons-france-confort.fr/mentions-legales/. HEXAOM Services est enregistré auprès de l'ORIAS en tant que Courtier en financement, Niveau 1, sous le numéro 14001345.

Contactez l'agence de Limay

01 30 33 96 64

    * Champs obligatoires

    Vos informations sont traitées par HEXAOM et transmises à un conseiller commercial qui vous contactera afin de répondre à votre demande. Les plans et images présentés sur notre site sont la propriété d’HEXAOM et ne peuvent pas être reproduits sans son accord. Pour retrouver notre politique de protection des données personnelles et exercer vos droits conformément à la « loi informatique et liberté » cliquez-ici.