Maison neuve à
Aurensan
(65390) Référence :
VC2225830_1
Prix du projet : Maison avec Terrain
prix 239 500 €
- 4 pièces
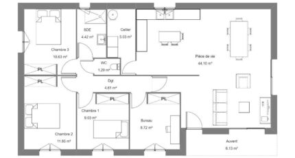
- 3 chambres
- Surface maison 90 m2
VENTE d'une maison de 4 pièces (90 m²) à Aurensan
IDÉALEMENT SITUÉE - MAISON 4 PIÈCES NEUVE
En vente : à 8 km de Tarbes, découvrez, idéalement située dans Aurensan (65390), cette maison de 4 pièces de 90 m² avec vue sur jardin. Conçue de plain-pied, elle offre trois chambres, une cuisine et une salle de bains.
Le terrain du bien s'étend sur 981 m².
C'est une maison de plain-pied. Elle est neuve.
La maison se situe dans un quartier recherché. L'école élémentaire École Simone Veil est implantée à moins de 10 minutes à pied. Côté transports, on trouve la gare Tarbes à moins de 10 minutes en voiture. On trouve un accès à la nationale N21 à 7 km. Il y a un commerce, une boulangerie, un bureau de poste et une épicerie à quelques minutes de la maison.
Elle est proposée à l'achat pour 239 500 €.
Contactez notre agence (Vincent CAUSSIEU : 06-10-82-28-65) pour plus d'informations sur la maison ou sur les démarches à suivre. Maisons Bruno Petit GHPA Juillan vous accompagne à toutes les étapes de votre projet et dans tous vos projets immobiliers.
Mentions légales
Terrain proposé par un partenaire foncier selon disponibilités et autorisation de publicité au prix de 68 670 €. Hors droit d'enregistrement et frais de notaire. Maison proposée, avec un contrat de construction de maison individuelle, dans le cadre de la loi du 19/12/1990, au prix de 170 830 € (Hors branchements et raccordements, papiers peints, peintures, revêtement de sol dans les chambres, qui sont chiffrés dans les travaux qui restent à charge du client. Tarif modifiable sans préavis). Étiquette énergie : A. Différents modèles disponibles pour ce terrain. Assurances et garanties du constructeur comprises (RC professionnelle, décennale, dommage ouvrage).Agence Bruno Petit GHPA de Juillan (65290)
- Téléphone :
- 05 62 32 91 45
- Adressse :
- 9 route de Lourdes
65290 Juillan, France
