Maison neuve à
Aureville
(31320) Référence :
PC2421328_3
Prix du projet : Maison avec Terrain
prix 322 769 €
- 6 pièces
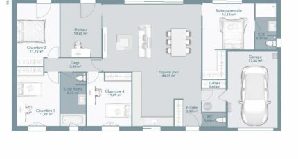
- 5 chambres
- Surface maison 125 m2
Cherchez-vous l'espace et la fonctionnalité pour accueillir toute votre famille dans un cadre d'exception ? Votre futur foyer vous attend à Aureville sur ce terrain de 450 m², idéalement situé pour une qualité de vie incomparable au sud de Toulouse.
Une adresse de choix dans le Sicoval :
Village calme et prisé à seulement 20 minutes du centre de Toulouse.
Avantage financier : Les frais de notaire s'appliquent uniquement sur le terrain.
La villa OPTIMA 125 : Découvrez une maison de plain-pied de 5 chambres, idéale pour le bien-être de chacun. Elle dispose d'une pièce à vivre de plus de 45 m² et d'une organisation astucieuse séparant l'espace parents (suite parentale) de l'espace enfants (4 chambres). Un cellier, un garage et 3 WC complètent ce bien conforme à la RE2020.
Infos : Agence Maisons France Confort Saint-Orens au 05.61.73.11.84
Annonce proposée par un Agent Commercial Partenaire.
Mentions légales
Terrain proposé par un partenaire foncier selon disponibilités et autorisation de publicité au prix de 109 000 €. Hors droit d'enregistrement et frais de notaire. Terrain + Maison proposés au prix de 322 769 € (Hors branchements et raccordements, papiers peints, peintures, revêtement de sol dans les chambres. Tarif modifiable sans préavis). Etiquette énergie : A. Différents modèles disponibles pour ce terrain. Assurances et garanties du constructeur (RC professionnelle, décennale, dommage ouvrage, garantie de remboursement de l'acompte, livraison à prix et délai convenu) : https://www.maisons-france-confort.fr/mentions-legales/. HEXAOM Services est enregistré auprès de l'ORIAS en tant que Courtier en financement, Niveau 1, sous le numéro 14001345.Agence Maisons France Confort de Saint-Orens-de-Gameville (31650)
- Téléphone :
- 05 61 73 11 84
- Adressse :
- 1 rue de la plaine
31650 Saint-Orens-de-Gameville, France
