Maison neuve à
Autretot (76190) Référence : LC2428933_5

Prix du projet : Maison avec Terrain

prix 207 311 €

  • 4 pièces
  • 3 chambres
  • Surface maison 90 m2

Votre projet de construction est prêt!!
Il se situera à Autretot (76190) dans un lotissement, sur un terrain déjà viabilisé, assainissement collectif!!
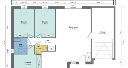
Cette maison comprend 3 chambres, un espace de vie cuisine/séjour ouvert de 45 m², un grand garage et une salle d'eau commune, les menuiseries sont en pvc, et le système de chauffage est une Pac Air Air..
Je vous indiquerai les frais annexes à ajouter à ce projet!!
Maisons France Confort, fondateur du Groupe HEXAOM, vous promet un projet durable.
Laissez-moi vous accompagner de A à Z, libérez vous des recherches épuisantes et offrez vous un vrai investissement avec un DPE en classe A!!!

Je m'appelle Lindsay COLLAY, et vous pouvez me contacter O6 67 66 O8 77

Mentions légales

Terrain proposé par un partenaire foncier selon disponibilités et autorisation de publicité au prix de 64 000 €. Hors droit d'enregistrement et frais de notaire. Terrain + Maison proposés au prix de 207 311 € (Hors branchements et raccordements, papiers peints, peintures, revêtement de sol dans les chambres. Tarif modifiable sans préavis). Etiquette énergie : A. Différents modèles disponibles pour ce terrain. Assurances et garanties du constructeur (RC professionnelle, décennale, dommage ouvrage, garantie de remboursement de l'acompte, livraison à prix et délai convenu) : https://www.maisons-france-confort.fr/mentions-legales/. HEXAOM Services est enregistré auprès de l'ORIAS en tant que Courtier en financement, Niveau 1, sous le numéro 14001345.

Contactez l'agence de Sainte-Marie-des-Champs

02 32 98 94 90

    * Champs obligatoires

    Vos informations sont traitées par HEXAOM et transmises à un conseiller commercial qui vous contactera afin de répondre à votre demande. Les plans et images présentés sur notre site sont la propriété d’HEXAOM et ne peuvent pas être reproduits sans son accord. Pour retrouver notre politique de protection des données personnelles et exercer vos droits conformément à la « loi informatique et liberté » cliquez-ici.