Maison neuve à
Auzeville-Tolosane
(31320) Référence :
TL2465223_1
Prix du projet : Maison avec Terrain
prix 429 000 €
- 6 pièces
- 4 chambres
- Surface maison 110 m2
Une villa d'exception sur un terrain privilégié à 5 minutes d'AUZEVILLE
Découvrez une opportunité unique à Castanet Tolosan : l'alliance parfaite entre une magnifique maison contemporaine de 110 m² et un terrain de 1000 m², idéalement situé. Ce projet sur mesure est conçu pour ceux qui recherchent un cadre de vie haut de gamme, à la fois paisible et connecté à l'effervescence toulousaine.
Un aménagement pensé pour votre confort
La maison, à l'architecture élégante, se déploie sur deux niveaux pour optimiser chaque espace :
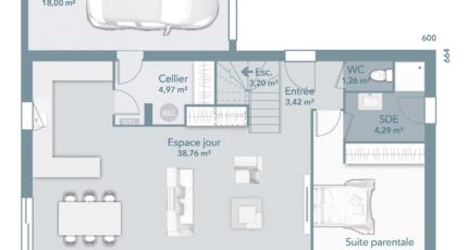
Au rez-de-chaussée : Une vaste pièce de vie avec une cuisine ouverte et un cellier pratique, une entrée accueillante avec WC, et une suite parentale pour plus d'intimité et de commodité.
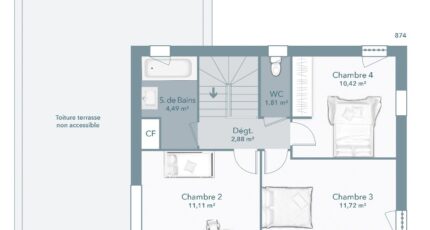
À l'étage : Un espace nuit distinct, offrant trois chambres spacieuses, une salle de bains et un WC séparé, parfait pour les familles.
Des finitions de qualité supérieure et une conception axée sur le bien-être assurent une harmonie naturelle et un confort durable. Un garage de 18 m² vient compléter cet ensemble.
Un cadre de vie recherché et un investissement sûr
Proposé à partir de 429 000 € (hors frais de notaire et annexes), ce projet "terrain + maison" est une valeur sûre. Castanet Tolosan, reconnue pour son calme et son environnement champêtre, bénéficie de toutes les commodités essentielles. C'est l'équilibre parfait entre sérénité et accessibilité.
Pour plus de détails et pour concrétiser votre projet, contactez dès aujourd'hui l'agence Maisons France Confort de Saint-Orens au 05.61.73.11.84.
Annonce proposée par un Agent Commercial Partenaire.
Mentions légales
Terrain proposé par un partenaire foncier selon disponibilités et autorisation de publicité au prix de 199 000 €. Hors droit d'enregistrement et frais de notaire. Terrain + Maison proposés au prix de 429 000 € (Hors branchements et raccordements, papiers peints, peintures, revêtement de sol dans les chambres. Tarif modifiable sans préavis). Etiquette énergie : A. Différents modèles disponibles pour ce terrain. Assurances et garanties du constructeur (RC professionnelle, décennale, dommage ouvrage, garantie de remboursement de l'acompte, livraison à prix et délai convenu) : https://www.maisons-france-confort.fr/mentions-legales/. HEXAOM Services est enregistré auprès de l'ORIAS en tant que Courtier en financement, Niveau 1, sous le numéro 14001345.Agence Maisons France Confort de Saint-Orens-de-Gameville (31650)
- Téléphone :
- 05 61 73 11 84
- Adressse :
- 1 rue de la plaine
31650 Saint-Orens-de-Gameville, France
