Maison neuve à
Ayguemorte-les-Graves
(33640) Référence :
PA1044AYGUEMORTE-0_3
Prix du projet : Maison avec Terrain
prix 378 450 €
- 7 pièces
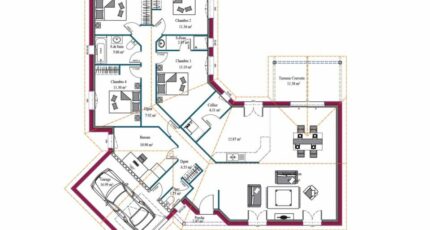
- 4 chambres
- Surface maison 146 m2
VENTE d'une maison de 7 pièces (146 m²) à Ayguemorte-les-Graves
EMPLACEMENT PRIVILÉGIÉ - MAISON 7 PIÈCES NEUVE
En vente : à 22 km de la côte atlantique et à 21 km de Bordeaux, venez découvrir cette maison de 7 pièces de plain-pied de 146 m² bénéficiant d'un emplacement d'exception dans Ayguemorte-les-Graves (33640). Conçue de plain-pied, elle comporte quatre chambres, une cuisine et deux salles de bains.
Le terrain de la maison est de 1 044 m².
Cette maison est neuve.
Ce bien se trouve dans un quartier prisé. L'École Primaire l'Aygue Marine est implantée à moins de 10 minutes à pied. Niveau transports, on trouve six gares à moins de 10 minutes en voiture. Il y a un tennis à proximité.
Son prix de vente est de 378 450 €.
Contactez Pamela AUDINEAU pour obtenir de plus amples informations sur la maison.
Mentions légales
Idée de réalisation en modèle prêt à décorer sur l'un de nos terrains partenaires, sous réserve de disponibilités. Voir détails en agence.Agence Maisons de la Côte Atlantique de Portets (33640)
- Téléphone :
- 05 56 32 87 56
- Adressse :
- 2 bis A, rue du Mirail
33640 Portets, France
