Maison neuve à
Azay-sur-Cher
(37270) Référence :
MT2381028_1
Prix du projet : Maison avec Terrain
prix 250 000 €
- 4 pièces
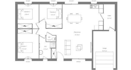
- 3 chambres
- Surface maison 80 m2
VENTE : maison T4 (80 m²) à Azay-sur-Cher
PROCHE DE TOURS - MAISON 4 PIÈCES NEUVE
À quelques kilomètres de Tours, laissez vous charmer par à vendre à Azay-sur-Cher (37270), cette maison de 4 pièces de plain-pied de 80 m² et de 580 m² de terrain. Elle inclut trois chambres, une cuisine et une salle de bains.
Cette maison est neuve.
L'École Maternelle Charles Perrault et l'École Élémentaire Maurice Genevoix sont implantées à moins de 10 minutes à pied, tout comme une structure d'accueil pour les tout-petits. Côté transports, on trouve six gares à moins de 10 minutes en voiture. L'autoroute A85 est accessible à 6 km. Il y a un tennis, trois commerces, deux boulangeries, une épicerie et un bureau de poste à proximité du logement.
Elle est proposée à l'achat pour 250 000 €.
Prenez contact avec notre agence (TERNIER Maxime : °6 63 77 59 71) pour obtenir de plus amples informations sur ce bien ou sur les modalités de vente. Maisons France Confort Saint-Avertin vous accompagne à toutes les étapes de votre projet et dans tous vos projets immobiliers.
Mentions légales
Terrain proposé par un partenaire foncier selon disponibilités et autorisation de publicité au prix de 99 000 €. Hors droit d'enregistrement et frais de notaire. Terrain + Maison proposés au prix de 250 000 € (Hors branchements et raccordements, papiers peints, peintures, revêtement de sol dans les chambres. Tarif modifiable sans préavis). Etiquette énergie : A. Différents modèles disponibles pour ce terrain. Assurances et garanties du constructeur (RC professionnelle, décennale, dommage ouvrage, garantie de remboursement de l'acompte, livraison à prix et délai convenu) : https://www.maisons-france-confort.fr/mentions-legales/. HEXAOM Services est enregistré auprès de l'ORIAS en tant que Courtier en financement, Niveau 1, sous le numéro 14001345.Agence Maisons France Confort de Saint-Avertin (37550)
- Téléphone :
- 06 27 92 26 92
- Adressse :
- 35 rue du général Mocquery
37550 Saint-Avertin, France
