Maison neuve à 
  Azereix
 (65380)  Référence :
 LB2225567_1 
Prix du projet : Maison avec Terrain
prix 214 000 €
- 4 pièces
- 3 chambres
- Surface maison 90 m2
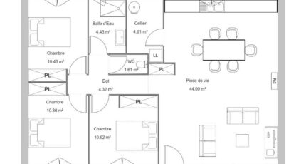
VENTE : maison T4 (90 m²) à AZEREIX
IDÉALEMENT SITUÉE - MAISON 4 PIÈCES NEUVE
Maisons Bruno Petit GHPA vous propose cette maison de 4 pièces de plain-pied de 90 m² 
Cette maison compte trois chambres, une cuisine et une salle de bains.
Le terrain du bien est de 726 m².
Maison proposée à partir de 214000€ Hors frais de notaire. A composer selon votre projet et vos envies.
N'hésitez pas à prendre contact avec notre agence (Demandez Laurent BAZIN 06-21-35-99-37 Bruno Petit à Juillan) pour toute question sur la maison, sur les démarches à suivre ou sur les modalités de vente.
Mentions légales
Terrain proposé par un partenaire foncier selon disponibilités et autorisation de publicité au prix de 60 000 €. Hors droit d'enregistrement et frais de notaire. Maison proposée, avec un contrat de construction de maison individuelle, dans le cadre de la loi du 19/12/1990, au prix de 154 000 € (Hors branchements et raccordements, papiers peints, peintures, revêtement de sol dans les chambres, qui sont chiffrés dans les travaux qui restent à charge du client. Tarif modifiable sans préavis). Étiquette énergie : A. Différents modèles disponibles pour ce terrain. Assurances et garanties du constructeur comprises (RC professionnelle, décennale, dommage ouvrage).Agence Bruno Petit GHPA de Juillan (65290)
- Téléphone :
- 05 62 32 91 45
- Adressse :
-  9 route de Lourdes
 65290 Juillan, France
 
  
  
  
  
  
  
 