Maison neuve à
Balloy
(77118) Référence :
CY2429951_1
Prix du projet : Maison avec Terrain
prix 250 000 €
- 5 pièces
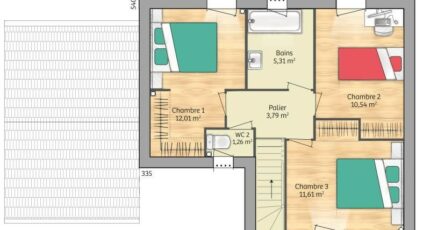
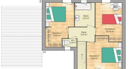
- 3 chambres
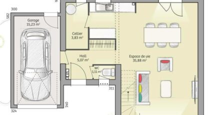
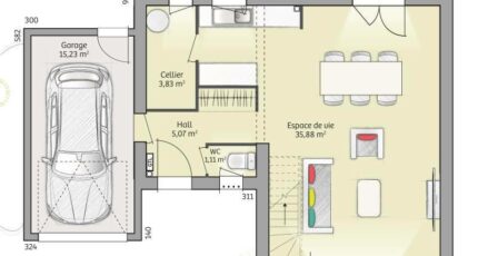
- Surface maison 90 m2
Balloy : maison T5 (90 m²) à vendre
MAISON 5 PIÈCES NEUVE - PROCHE DE SENS
À vendre à deux pas de Sens, nous vous proposons cette maison de 5 pièces de 90 m² et de 1 150 m² de terrain à Balloy (77118).
Il s'agit d'une maison de 2 niveaux. Elle comporte trois chambres, une cuisine et une salle de bains. Cette maison est neuve.
Une école élémentaire est implantée dans le quartier. Côté transports, il y a les gares Villeneuve-la-Guyard et Champigny sur Yonne à moins de 10 minutes en voiture.
Elle est à vendre pour la somme de 250 000 €.
Prenez contact avec Cedric YAHIAOUI (06-66-57-00-63) pour obtenir de plus amples informations sur la maison ou sur les modalités de vente.
Annonce proposée par un Agent Commercial Partenaire.
Mentions légales
Terrain proposé par un partenaire foncier selon disponibilités et autorisation de publicité au prix de 52 000 €. Hors droit d'enregistrement et frais de notaire. Terrain + Maison proposés au prix de 250 000 € (Hors branchements et raccordements, papiers peints, peintures, revêtement de sol dans les chambres. Tarif modifiable sans préavis). Etiquette énergie : A. Différents modèles disponibles pour ce terrain. Assurances et garanties du constructeur (RC professionnelle, décennale, dommage ouvrage, garantie de remboursement de l'acompte, livraison à prix et délai convenu) : https://www.maisons-france-confort.fr/mentions-legales/. HEXAOM Services est enregistré auprès de l'ORIAS en tant que Courtier en financement, Niveau 1, sous le numéro 14001345.Agence Maisons France Confort de Magny-le-Hongre (77700)
- Téléphone :
- 01 84 80 92 96
- Adressse :
- 11 rue de Courtalin
77700 Magny-le-Hongre, France
