Maison neuve à
Barbery
(14220) Référence :
SC2399581_1
Prix du projet : Maison avec Terrain
prix 241 000 €
- 5 pièces
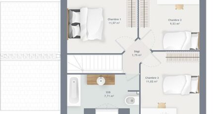
- 3 chambres
- Surface maison 80 m2
VENTE d'une maison T5 (80 m²) à Barbery
IDÉALEMENT SITUÉE - MAISON 5 PIÈCES NEUVE
À vendre à 30 min de la mer et à 15 min de Caen, nous vous proposons cette maison de 5 pièces de 80 m² et de 400 m² de terrain idéalement située dans Barbery (14220). Elle compte trois chambres, une cuisine et une salle de bains.
Cette maison comporte 2 niveaux. Elle est neuve.
La maison se trouve dans un quartier prisé. On y trouve une école primaire. Il y a un accès à la nationale N158 à 7 km.
Elle est proposée à l'achat pour 241 000 €.
N'hésitez pas à prendre contact avec notre agence (CHATARD Séverine : 06-29-77-10-07) pour tout renseignement sur la maison ou sur les modalités de vente.
Mentions légales
Terrain proposé par un partenaire foncier selon disponibilités et autorisation de publicité au prix de 49 000 €. Hors droit d'enregistrement et frais de notaire. Terrain + Maison proposés au prix de 241 000 € (Hors branchements et raccordements, papiers peints, peintures, revêtement de sol dans les chambres. Tarif modifiable sans préavis). Etiquette énergie : A. Différents modèles disponibles pour ce terrain. Assurances et garanties du constructeur (RC professionnelle, décennale, dommage ouvrage, garantie de remboursement de l'acompte, livraison à prix et délai convenu) : https://www.maisons-france-confort.fr/mentions-legales/. HEXAOM Services est enregistré auprès de l'ORIAS en tant que Courtier en financement, Niveau 1, sous le numéro 14001345.Agence Maisons France Confort de Caen (14000)
- Téléphone :
- 02 31 86 12 21
- Adressse :
- 11 place de la Résistance
14000 Caen, France
