Maison neuve à 
  Barbeville
 (14400)  Référence :
 JS2322613_2 
Prix du projet : Maison avec Terrain
prix 256 000 €
- 5 pièces
- 3 chambres
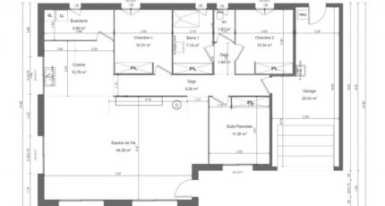
- Surface maison 110 m2
VENTE d'une maison de 5 pièces (110 m²) à Bayeux
IDÉALEMENT SITUÉE - MAISON 5 PIÈCES NEUVE
En vente à 9 km de la Manche et à 26 km de Caen, idéalement située dans Bayeux (14400), découvrez cette maison de 5 pièces de plain-pied de 110 m² et de 300 m² de terrain.
Elle est composée de trois chambres, d'une cuisine et d'une salle de bains. La maison est neuve.
Le bien est situé dans un quartier attractif. Des écoles (de la maternelle au lycée) sont implantées à moins de 10 minutes à pied, tout comme une crèche. Côté transports en commun, il y a la gare Bayeux à quelques pas de la maison. On trouve un accès à la nationale N13 à 3 km. On trouve une bibliothèque, des commerces, des boulangeries, un supermarché, des boucheries-charcuteries et trois épiceries à quelques minutes du bien. 2 marchés animent les environs.
Il est proposé à l'achat pour 256 000 €.
Prenez contact avec Emilie HUE (06-29-81-46-66) pour plus de renseignements sur la maison. Maisons France Confort Bayeux est là pour vous accompagner dans toutes vos démarches.
Annonce proposée par un Agent Commercial Partenaire.
Mentions légales
Terrain proposé par un partenaire foncier selon disponibilités et autorisation de publicité au prix de 56 000 €. Hors droit d'enregistrement et frais de notaire. Maison proposée, avec un contrat de construction de maison individuelle, dans le cadre de la loi du 19/12/1990, au prix de 200 000 € (Hors branchements et raccordements, papiers peints, peintures, revêtement de sol dans les chambres, qui sont chiffrés dans les travaux qui restent à charge du client. Tarif modifiable sans préavis). Étiquette énergie : A. Différents modèles disponibles pour ce terrain. Assurances et garanties du constructeur comprises (RC professionnelle, décennale, dommage ouvrage).Agence Maisons France Confort de Bayeux (14400)
- Téléphone :
- 02 31 51 20 91
- Adressse :
-  2, rue Saint Loup
 14400 Bayeux, France
 
  
  
  
  
 