Maison neuve à 
  Barbeville
 (14400)  Référence :
 JS2322613_4 
Prix du projet : Maison avec Terrain
prix 211 000 €
- 5 pièces
- 3 chambres
- Surface maison 95 m2
VENTE : maison de 5 pièces (95 m²) à Bayeux
IDÉALEMENT SITUÉE - MAISON 5 PIÈCES NEUVE
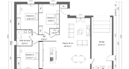
À 9 km de la Manche et à 26 km de Caen, en vente idéalement située dans Bayeux (14400), nous sommes heureux de vous proposer cette maison de 5 pièces de plain-pied de 95 m² et de 300 m² de terrain. Conçue de plain-pied, elle comporte trois chambres, une cuisine et deux salles de bains.
Cette maison est neuve.
Cette maison se trouve dans un secteur prisé. Il y a des établissements scolaires de tous niveaux (de la maternelle au lycée) à moins de 10 minutes à pied, tout comme une crèche. Niveau transports en commun, on trouve la gare Bayeux à proximité. La nationale N13 est accessible à 3 km. Il y a une bibliothèque, des commerces, des boulangeries, un supermarché, une supérette et des boucheries-charcuteries dans les environs. 2 marchés animent les environs.
Elle est à vendre pour la somme de 211 000 €.
Contactez Emilie HUE (tél : 06-29-81-46-66) pour obtenir de plus amples informations sur la maison. Maisons France Confort Bayeux est là pour vous accompagner dans toutes vos démarches.
Annonce proposée par un Agent Commercial Partenaire.
Mentions légales
Terrain proposé par un partenaire foncier selon disponibilités et autorisation de publicité au prix de 56 000 €. Hors droit d'enregistrement et frais de notaire. Maison proposée, avec un contrat de construction de maison individuelle, dans le cadre de la loi du 19/12/1990, au prix de 155 000 € (Hors branchements et raccordements, papiers peints, peintures, revêtement de sol dans les chambres, qui sont chiffrés dans les travaux qui restent à charge du client. Tarif modifiable sans préavis). Étiquette énergie : A. Différents modèles disponibles pour ce terrain. Assurances et garanties du constructeur comprises (RC professionnelle, décennale, dommage ouvrage).Agence Maisons France Confort de Bayeux (14400)
- Téléphone :
- 02 31 51 20 91
- Adressse :
-  2, rue Saint Loup
 14400 Bayeux, France
 
  
  
  
  
  
 