Maison neuve à
Barbeville
(14400) Référence :
JS2322613_10
Prix du projet : Maison avec Terrain
prix 201 000 €
- 5 pièces
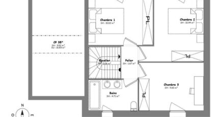
- 3 chambres
- Surface maison 85 m2
VENTE : maison de 5 pièces (85 m²) à Bayeux
IDÉALEMENT SITUÉE - MAISON 5 PIÈCES NEUVE
En vente à 9 km de la Manche et à 26 km de Caen, idéalement située dans Bayeux (14400), nous sommes heureux de vous proposer cette maison de 5 pièces de 85 m² et de 300 m² de terrain.
Cette maison comporte 2 niveaux. Elle compte trois chambres, une cuisine et une salle de bains. Cette maison est neuve.
La maison est située dans un quartier convoité. Des écoles de tous niveaux se trouvent à moins de 10 minutes à pied, tout comme une crèche. Niveau transports, il y a la gare Bayeux à quelques pas du bien. On trouve un accès à la nationale N13 à 3 km. On trouve une bibliothèque, des commerces, des boulangeries, un supermarché, des boucheries-charcuteries et un bureau de poste à proximité du logement. Enfin, 2 marchés animent le quartier.
Elle est à vendre pour la somme de 201 000 €.
Contactez Emilie HUE (06-29-81-46-66) pour obtenir de plus amples informations sur la maison, sur les modalités de vente ou sur les démarches à suivre. Faites de vos projets immobiliers une réalité avec Maisons France Confort Bayeux.
Annonce proposée par un Agent Commercial Partenaire.
Mentions légales
Terrain proposé par un partenaire foncier selon disponibilités et autorisation de publicité au prix de 56 000 €. Hors droit d'enregistrement et frais de notaire. Maison proposée, avec un contrat de construction de maison individuelle, dans le cadre de la loi du 19/12/1990, au prix de 145 000 € (Hors branchements et raccordements, papiers peints, peintures, revêtement de sol dans les chambres, qui sont chiffrés dans les travaux qui restent à charge du client. Tarif modifiable sans préavis). Étiquette énergie : A. Différents modèles disponibles pour ce terrain. Assurances et garanties du constructeur comprises (RC professionnelle, décennale, dommage ouvrage).Agence Maisons France Confort de Bayeux (14400)
- Téléphone :
- 02 31 51 20 91
- Adressse :
- 2, rue Saint Loup
14400 Bayeux, France
