Maison neuve à
Barbeville
(14400) Référence :
JS2322609_2
Prix du projet : Maison avec Terrain
prix 256 000 €
- 5 pièces
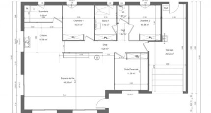
- 3 chambres
- Surface maison 110 m2
Maison de 5 pièces (110 m²) à vendre à Bayeux
IDÉALEMENT SITUÉE - MAISON 5 PIÈCES NEUVE
À vendre : à 9 km de la Manche et à deux pas de Caen, ayez le coup de coeur pour cette maison de 5 pièces de plain-pied de 110 m² idéalement située dans Bayeux (14400).
Conçue de plain-pied, elle inclut trois chambres, une cuisine et une salle de bains. Cette maison est neuve.
Le terrain du bien s'étend sur 300 m².
La maison se trouve dans un secteur convoité. Il y a des établissements scolaires du primaire et du secondaire à moins de 10 minutes à pied, tout comme une crèche. Côté transports en commun, on trouve la gare Bayeux à proximité. Il y a un accès à la nationale N13 à 3 km. Il y a une bibliothèque, des commerces, des boulangeries, un supermarché, des boucheries-charcuteries et trois épiceries dans les environs. 2 marchés animent les environs.
Elle est à vendre pour la somme de 256 000 €.
Prenez contact avec notre agence (HUE Emilie : 06-29-81-46-66) pour toute question sur la maison. Donnez vie à vos projets immobiliers avec Maisons France Confort Bayeux.
Annonce proposée par un Agent Commercial Partenaire.
Mentions légales
Terrain proposé par un partenaire foncier selon disponibilités et autorisation de publicité au prix de 56 000 €. Hors droit d'enregistrement et frais de notaire. Maison proposée, avec un contrat de construction de maison individuelle, dans le cadre de la loi du 19/12/1990, au prix de 200 000 € (Hors branchements et raccordements, papiers peints, peintures, revêtement de sol dans les chambres, qui sont chiffrés dans les travaux qui restent à charge du client. Tarif modifiable sans préavis). Étiquette énergie : A. Différents modèles disponibles pour ce terrain. Assurances et garanties du constructeur comprises (RC professionnelle, décennale, dommage ouvrage).Agence Maisons France Confort de Bayeux (14400)
- Téléphone :
- 02 31 51 20 91
- Adressse :
- 2, rue Saint Loup
14400 Bayeux, France
