Maison neuve à
Barbeville
(14400) Référence :
JS2322609_8
Prix du projet : Maison avec Terrain
prix 221 000 €
- 6 pièces
- 4 chambres
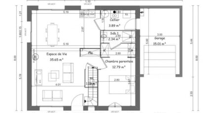
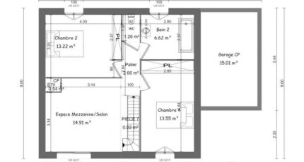
- Surface maison 110 m2
Maison F6 (110 m²) en vente à Bayeux
IDÉALEMENT SITUÉE - MAISON 6 PIÈCES NEUVE
À vendre : située à 9 km de la Manche et à quelques kilomètres de Caen, idéalement située dans Bayeux (14400), Maisons France Confort Bayeux vous présente cette maison de 6 pièces de 110 m². Son intérieur inclut quatre chambres, une cuisine et deux salles de bains.
Le terrain de cette maison est de 300 m².
Cette maison comporte 2 niveaux. Elle est neuve.
La maison est située dans un quartier attractif. Il y a des établissements scolaires du primaire et du secondaire à moins de 10 minutes à pied, tout comme une structure d'accueil pour les enfants en bas âge. Niveau transports, on trouve la gare Bayeux à quelques pas de la maison. La nationale N13 est accessible à 3 km. Il y a une bibliothèque, des commerces, des boulangeries, un supermarché, un bureau de poste et des boucheries-charcuteries à proximité. 2 marchés animent les environs.
Elle est à vendre pour la somme de 221 000 €.
Contactez Emilie HUE (tél : 06-29-81-46-66) pour plus d'informations sur la maison, sur les démarches à suivre ou sur les modalités de vente. Maisons France Confort Bayeux est là pour vous accompagner à toutes les étapes de l'achat.
Annonce proposée par un Agent Commercial Partenaire.
Mentions légales
Terrain proposé par un partenaire foncier selon disponibilités et autorisation de publicité au prix de 56 000 €. Hors droit d'enregistrement et frais de notaire. Maison proposée, avec un contrat de construction de maison individuelle, dans le cadre de la loi du 19/12/1990, au prix de 165 000 € (Hors branchements et raccordements, papiers peints, peintures, revêtement de sol dans les chambres, qui sont chiffrés dans les travaux qui restent à charge du client. Tarif modifiable sans préavis). Étiquette énergie : A. Différents modèles disponibles pour ce terrain. Assurances et garanties du constructeur comprises (RC professionnelle, décennale, dommage ouvrage).Agence Maisons France Confort de Bayeux (14400)
- Téléphone :
- 02 31 51 20 91
- Adressse :
- 2, rue Saint Loup
14400 Bayeux, France
