Maison neuve à
Barjac
(30430) Référence :
MD2456414_3
Prix du projet : Maison avec Terrain
prix 480 000 €
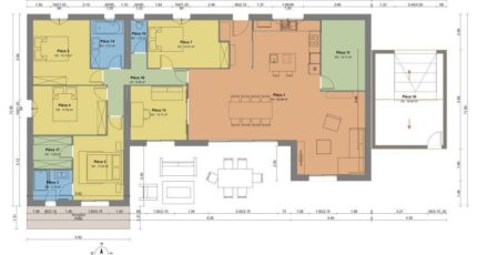
- 7 pièces
- 5 chambres
- Surface maison 153 m2
Terrain proposé dans le cadre d'un projet de construction avec Maisons France Confort
Maison France Confort vous propose un projet clé en main à xxx sur un terrain de 3390 m2.
Laissez-vous séduire par cette maison de 153 m2 au style moderne, pensée pour offrir luminosité et confort. Vous profiterez d'un vaste séjour avec cuisine ouverte, de chambres spacieuses et d'un agencement optimisé. Ce projet est présenté à titre d'exemple et reste 100 % personnalisable. Nous vous accompagnons à chaque étape, du premier échange jusqu'à la remise des clés.
Budget estimé pour ce projet (terrain + maison) : 480 000 € TTC ( Frais de notaire, raccordements et adaptations au sol non inclus.).
Proposé en contrat de construction de maison individuelle (CCMI), incluant toutes les garanties légales : garantie de livraison, garantie de parfait achèvement, garantie décennale, assurance dommages-ouvrage, prix ferme et définitif.
Contact :Mélanie DEFFOBIS - Maison France Confort, Agence de Vallon Pont d'Arc / 06 46 26 20 66
Mentions légales
Terrain proposé par un partenaire foncier selon disponibilités et autorisation de publicité au prix de 115 000 €. Hors droit d'enregistrement et frais de notaire. Terrain + Maison proposés au prix de 480 000 € (Hors branchements et raccordements, papiers peints, peintures, revêtement de sol dans les chambres. Tarif modifiable sans préavis). Etiquette énergie : A. Différents modèles disponibles pour ce terrain. Assurances et garanties du constructeur (RC professionnelle, décennale, dommage ouvrage, garantie de remboursement de l'acompte, livraison à prix et délai convenu) : https://www.maisons-france-confort.fr/mentions-legales/. HEXAOM Services est enregistré auprès de l'ORIAS en tant que Courtier en financement, Niveau 1, sous le numéro 14001345.Agence Maisons France Confort de Vallon-Pont-d'Arc (07150)
- Téléphone :
- 04 75 38 51 85
- Adressse :
- 77 boulevard Peshaire Alison
07150 Vallon-Pont-d'Arc, France
