Maison neuve à
Barjac (30430) Référence : MD2465421_4

Prix du projet : Maison avec Terrain

prix 405 000 €

  • 5 pièces
  • 3 chambres
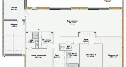
  • Surface maison 120 m2

Terrain proposé dans le cadre d'un projet de construction avec Maisons France Confort
MAISON EN OSSATURE BOIS
Maison France Confort vous propose un projet clé en main à BARJAC sur un terrain de 1400 m2.
Laissez-vous séduire par cette maison de 120 m2 au style moderne, pensée pour offrir luminosité et confort. Vous profiterez d'un vaste séjour avec cuisine ouverte, de chambres spacieuses et d'un agencement optimisé. Ce projet est présenté à titre d'exemple et reste 100 % personnalisable. Nous vous accompagnons à chaque étape, du premier échange jusqu'à la remise des clés.
Budget estimé pour ce projet (terrain + maison) : 405 000 € TTC ( Frais de notaire, raccordements et adaptations au sol non inclus.).
Proposé en contrat de construction de maison individuelle (CCMI), incluant toutes les garanties légales : garantie de livraison, garantie de parfait achèvement, garantie décennale, assurance dommages-ouvrage, prix ferme et définitif.
Contact :Mélanie DEFFOBIS - Maison France Confort, Agence de Vallon Pont d'Arc / 06 46 26 20 66

Mentions légales

Terrain proposé par un partenaire foncier selon disponibilités et autorisation de publicité au prix de 75 000 €. Hors droit d'enregistrement et frais de notaire. Terrain + Maison proposés au prix de 405 000 € (Hors branchements et raccordements, papiers peints, peintures, revêtement de sol dans les chambres. Tarif modifiable sans préavis). Etiquette énergie : A. Différents modèles disponibles pour ce terrain. Assurances et garanties du constructeur (RC professionnelle, décennale, dommage ouvrage, garantie de remboursement de l'acompte, livraison à prix et délai convenu) : https://www.maisons-france-confort.fr/mentions-legales/. HEXAOM Services est enregistré auprès de l'ORIAS en tant que Courtier en financement, Niveau 1, sous le numéro 14001345.

Contactez l'agence de Vallon-Pont-d'Arc

04 75 38 51 85

    * Champs obligatoires

    Vos informations sont traitées par HEXAOM et transmises à un conseiller commercial qui vous contactera afin de répondre à votre demande. Les plans et images présentés sur notre site sont la propriété d’HEXAOM et ne peuvent pas être reproduits sans son accord. Pour retrouver notre politique de protection des données personnelles et exercer vos droits conformément à la « loi informatique et liberté » cliquez-ici.