Maison neuve à
Basly
(14610) Référence :
JS2298620_8
Prix du projet : Maison avec Terrain
prix 239 200 €
- 6 pièces
- 4 chambres
- Surface maison 110 m2
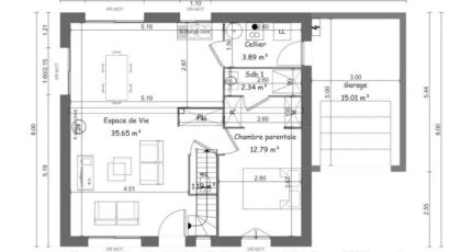
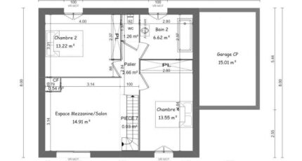
VENTE : maison de 6 pièces (110 m²) à Basly
QUARTIER RECHERCHÉ - MAISON 6 PIÈCES NEUVE
En vente à 7 km de la Manche et à deux pas de Caen, construite dans un quartier recherché de Basly (14610), nous vous proposons cette maison de 6 pièces de 110 m². Elle est composée de quatre chambres, d'une cuisine et de deux salles de bains.
Le terrain de la propriété est de 480 m².
C'est une maison de 2 niveaux. Elle est neuve.
Cette maison se trouve dans un secteur attractif. On y trouve une école maternelle. Niveau transports en commun, il y a la gare Saint-Germain-en-Laye Bel-Air-Fourqueux T13 à moins de 10 minutes en voiture. Les nationales N13 et N814 sont accessibles à moins de 10 km. On trouve un tennis, un commerce et une boulangerie à proximité.
Elle est à vendre pour la somme de 239 200 €.
Contactez notre agence (Emilie HUE : 06-29-81-46-66) pour obtenir de plus amples informations sur la maison ou sur les démarches à suivre. Faites de vos projets immobiliers une réalité avec Maisons France Confort Bayeux.
Annonce proposée par un Agent Commercial Partenaire.
Mentions légales
Terrain proposé par un partenaire foncier selon disponibilités et autorisation de publicité au prix de 74 200 €. Hors droit d'enregistrement et frais de notaire. Maison proposée, avec un contrat de construction de maison individuelle, dans le cadre de la loi du 19/12/1990, au prix de 165 000 € (Hors branchements et raccordements, papiers peints, peintures, revêtement de sol dans les chambres, qui sont chiffrés dans les travaux qui restent à charge du client. Tarif modifiable sans préavis). Étiquette énergie : A. Différents modèles disponibles pour ce terrain. Assurances et garanties du constructeur comprises (RC professionnelle, décennale, dommage ouvrage).Agence Maisons France Confort de Bayeux (14400)
- Téléphone :
- 02 31 51 20 91
- Adressse :
- 2, rue Saint Loup
14400 Bayeux, France
