Maison neuve à
Bassens
(33530) Référence :
IN2421960-0_4
Prix du projet : Maison avec Terrain
prix 293 000 €
- 4 pièces
- 3 chambres
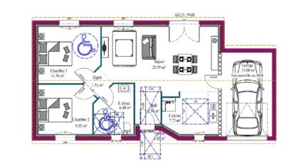
- Surface maison 90 m2
Contacter Isabelle Nadau - 07 83 16 38 49
Maison neuve T4 (90 m²) - Bassens
Prix : 293 000 € (EXCLUSIVITÉ MCA Blaye)
Prix hors frais de notaire, taxes et raccordements.
Proposition de terrain avec un projet de construction.
Maison neuve de plain-pied de 90 m² située à Bassens (33530), à seulement 9 km de Bordeaux. Elle se compose d'une pièce de vie avec cuisine, de trois chambres et d'une salle de bains. Le tout sur un terrain de 455 m², dans un secteur recherché et proche de toutes les commodités.
L'École Maternelle Frédéric Chopin, l'École Élémentaire Rosa Bonheur ainsi qu'une crèche se trouvent à moins de dix minutes à pied. Douze gares sont accessibles en moins de dix minutes en voiture. Les autoroutes A10 et A630 ainsi que les nationales N230 et N89 se situent à moins de 5 km. Deux supermarchés, une boulangerie, plusieurs commerces, une bibliothèque et un bureau de poste sont également à proximité. Le marché de la Place de la Commune anime le quartier chaque dimanche matin.
Terrain sous réserve de disponibilité. Visuels non contractuels.
Mentions légales
Idée de réalisation en modèle prêt à décorer sur l'un de nos terrains partenaires, sous réserve de disponibilités. Voir détails en agence.Agence Maisons de la Côte Atlantique de Blaye (33390)
- Téléphone :
- 05 57 32 87 63
- Adressse :
- 64, Rue Saint Romain
33390 Blaye, France
