Maison neuve à
Baugé (49150) Référence : RS2397875_3

Prix du projet : Maison avec Terrain

prix 208 900 €

  • 5 pièces
  • 3 chambres
  • Surface maison 85 m2

Baugé : maison de 5 pièces (85 m²) en vente
MAISON 5 PIÈCES NEUVE
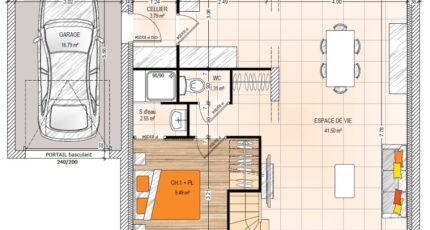
Votre agence Maisons Bernard Jambert Angers est heureuse de vous proposer cette maison de 5 pièces de 85 m² et de 441 m² de terrain à Baugé (49150).
Il s'agit d'une maison de 2 niveaux. Son intérieur se divise en trois chambres, une cuisine et deux salles de bains. Cette maison est neuve.
Il y a quatre établissements scolaires à moins de 10 minutes à pied et une structure d'accueil pour les enfants en bas âge. Les autoroutes A85 et A11 sont accessibles à moins de 18 km. On trouve un tennis, un bassin de natation, une bibliothèque, des commerces, des boulangeries, un supermarché, une épicerie et un bureau de poste à proximité du bien. Ne manquez pas le marché Place du marché tous les lundis après-midi.
Elle est proposée à l'achat pour 208 900 €.
Contactez Roman SALAS (tél : 02-41-77-17-17) pour tout renseignement sur cette maison. Maisons Bernard Jambert Angers est là pour vous accompagner dans tous vos projets immobiliers.

Mentions légales

Terrain proposé par un partenaire foncier selon disponibilités et autorisation de publicité au prix de 35 290 €. Hors droit d'enregistrement et frais de notaire. Terrain + Maison proposés au prix de 208 900 € (Hors branchements et raccordements, papiers peints, peintures, revêtement de sol dans les chambres. Tarif modifiable sans préavis). Etiquette énergie : A. Différents modèles disponibles pour ce terrain. Assurances et garanties du constructeur (RC professionnelle, décennale, dommage ouvrage, garantie de remboursement de l'acompte, livraison à prix et délai convenu) : https://www.maisons-bernard-jambert.com/informations-legales/.

Contactez l'agence de Angers

02 41 77 17 17

    * Champs obligatoires

    Vos informations sont traitées par HEXAOM et transmises à un conseiller commercial qui vous contactera afin de répondre à votre demande. Les plans et images présentés sur notre site sont la propriété d’HEXAOM et ne peuvent pas être reproduits sans son accord. Pour retrouver notre politique de protection des données personnelles et exercer vos droits conformément à la « loi informatique et liberté » cliquez-ici.