Maison neuve à
Baugé (49150) Référence : RS2397875_4

Prix du projet : Maison avec Terrain

prix 258 900 €

  • 6 pièces
  • 5 chambres
  • Surface maison 109 m2

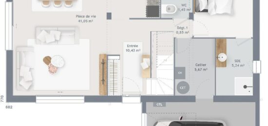
VENTE d'une maison T6 (109 m²) à Baugé
MAISON 6 PIÈCES NEUVE
À vendre : à Baugé (49150), nous sommes heureux de vous proposer cette maison de 6 pièces de 109 m². Son intérieur comporte cinq chambres, une cuisine et deux salles de bains.
Le terrain de la propriété s'étend sur 441 m².
Cette maison possède 2 niveaux. Elle est neuve.
Il y a quatre établissements scolaires à moins de 10 minutes à pied et une crèche. Les autoroutes A85 et A11 sont accessibles à moins de 18 km. On trouve un tennis, un bassin de natation, une bibliothèque, des commerces, des boulangeries, un supermarché, un bureau de poste et une supérette à proximité du logement. Ne manquez pas le marché Place du marché chaque lundi après-midi.
Son prix de vente est de 258 900 €.
N'hésitez pas à prendre contact avec notre agence (SALAS Roman : 02-41-77-17-17) pour tout renseignement sur cette maison ou sur les modalités de vente. Maisons Bernard Jambert Angers vous accompagne dans toutes vos démarches et dans tous vos projets immobiliers.

Mentions légales

Terrain proposé par un partenaire foncier selon disponibilités et autorisation de publicité au prix de 35 290 €. Hors droit d'enregistrement et frais de notaire. Terrain + Maison proposés au prix de 258 900 € (Hors branchements et raccordements, papiers peints, peintures, revêtement de sol dans les chambres. Tarif modifiable sans préavis). Etiquette énergie : A. Différents modèles disponibles pour ce terrain. Assurances et garanties du constructeur (RC professionnelle, décennale, dommage ouvrage, garantie de remboursement de l'acompte, livraison à prix et délai convenu) : https://www.maisons-bernard-jambert.com/informations-legales/.

Contactez l'agence de Angers

02 41 77 17 17

    * Champs obligatoires

    Vos informations sont traitées par HEXAOM et transmises à un conseiller commercial qui vous contactera afin de répondre à votre demande. Les plans et images présentés sur notre site sont la propriété d’HEXAOM et ne peuvent pas être reproduits sans son accord. Pour retrouver notre politique de protection des données personnelles et exercer vos droits conformément à la « loi informatique et liberté » cliquez-ici.