Maison neuve à
Baulne (91590) Référence : IL2447169_1

Prix du projet : Maison avec Terrain

prix 345 200 €

  • 6 pièces
  • 4 chambres
  • Surface maison 100 m2

VENTE : maison T6 (100 m²) à Baulne
PROCHE D'ANTONY - MAISON 6 PIÈCES NEUVE
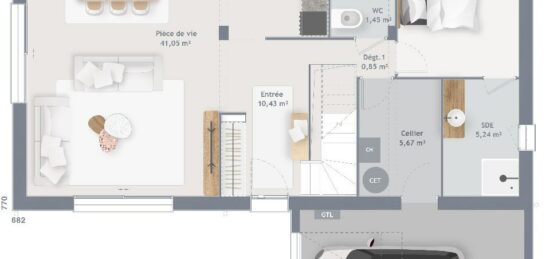
En vente : à proximité de la station Bouray du RER C (30 min de Paris), à Baulne (91590), Maisons France Confort Mareuil-lès-Meaux vous présente cette maison de 6 pièces de 100 m².
Cette maison compte 2 niveaux. Son intérieur est composé de quatre chambres, d'une cuisine et d'une salle de bains. Cette maison est neuve.
Le terrain du bien est de 429 m².
Il y a l'École Primaire Henri Gwozdz à moins de 10 minutes à pied. Côté transports en commun, on trouve deux lignes de RER (D et C) ainsi que six gares à moins de 10 minutes en voiture. On trouve des commerces, deux boucheries-charcuteries et une épicerie à proximité du logement.
Son prix de vente est de 345 200 €.
Contactez notre agence (LASLEDJ Ishane : 06-68-91-18-74) pour tout renseignement sur cette maison, sur les démarches à suivre ou sur les modalités de vente. Donnez vie à vos projets immobiliers avec Maisons France Confort Mareuil-lès-Meaux.

Annonce proposée par un Agent Commercial Partenaire.

Mentions légales

Terrain proposé par un partenaire foncier selon disponibilités et autorisation de publicité au prix de 135 000 €. Hors droit d'enregistrement et frais de notaire. Terrain + Maison proposés au prix de 345 200 € (Hors branchements et raccordements, papiers peints, peintures, revêtement de sol dans les chambres. Tarif modifiable sans préavis). Etiquette énergie : A. Différents modèles disponibles pour ce terrain. Assurances et garanties du constructeur (RC professionnelle, décennale, dommage ouvrage, garantie de remboursement de l'acompte, livraison à prix et délai convenu) : https://www.maisons-france-confort.fr/mentions-legales/. HEXAOM Services est enregistré auprès de l'ORIAS en tant que Courtier en financement, Niveau 1, sous le numéro 14001345.

Contactez l'agence de Mareuil-lès-Meaux

01 60 09 28 30

    * Champs obligatoires

    Vos informations sont traitées par HEXAOM et transmises à un conseiller commercial qui vous contactera afin de répondre à votre demande. Les plans et images présentés sur notre site sont la propriété d’HEXAOM et ne peuvent pas être reproduits sans son accord. Pour retrouver notre politique de protection des données personnelles et exercer vos droits conformément à la « loi informatique et liberté » cliquez-ici.