Maison neuve à
Baulne (91590) Référence : IL2447169_5

Prix du projet : Maison avec Terrain

prix 355 600 €

  • 5 pièces
  • 3 chambres
  • Surface maison 90 m2

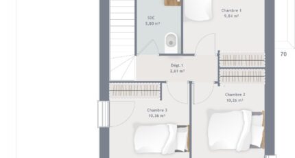
Maison de 5 pièces (90 m²) à vendre à Baulne
MAISON 5 PIÈCES NEUVE - PROCHE D'ANTONY
À vendre : à côté du RER C (station Bouray, 30 min de Paris), ayez le coup de coeur pour à Baulne (91590), cette maison de 5 pièces de 90 m². Son intérieur offre trois chambres, une cuisine et une salle de bains.
Le terrain de cette maison s'étend sur 429 m².
C'est une maison de 2 niveaux. Elle est neuve.
On trouve l'École Primaire Henri Gwozdz à moins de 10 minutes à pied. Niveau transports, il y a le RER D et C ainsi que six gares à moins de 10 minutes en voiture. Il y a plusieurs commerces, deux boucheries-charcuteries et une épicerie à quelques minutes à peine.
Elle est proposée à l'achat pour 355 600 €.
Contactez Ishane LASLEDJ (06-68-91-18-74) pour toute question sur la maison, sur les modalités de vente ou sur les démarches à suivre. Maisons France Confort Mareuil-lès-Meaux est là pour vous accompagner dans tous vos projets immobiliers.

Annonce proposée par un Agent Commercial Partenaire.

Mentions légales

Terrain proposé par un partenaire foncier selon disponibilités et autorisation de publicité au prix de 135 000 €. Hors droit d'enregistrement et frais de notaire. Terrain + Maison proposés au prix de 355 600 € (Hors branchements et raccordements, papiers peints, peintures, revêtement de sol dans les chambres. Tarif modifiable sans préavis). Etiquette énergie : A. Différents modèles disponibles pour ce terrain. Assurances et garanties du constructeur (RC professionnelle, décennale, dommage ouvrage, garantie de remboursement de l'acompte, livraison à prix et délai convenu) : https://www.maisons-france-confort.fr/mentions-legales/. HEXAOM Services est enregistré auprès de l'ORIAS en tant que Courtier en financement, Niveau 1, sous le numéro 14001345.

Contactez l'agence de Mareuil-lès-Meaux

01 60 09 28 30

    * Champs obligatoires

    Vos informations sont traitées par HEXAOM et transmises à un conseiller commercial qui vous contactera afin de répondre à votre demande. Les plans et images présentés sur notre site sont la propriété d’HEXAOM et ne peuvent pas être reproduits sans son accord. Pour retrouver notre politique de protection des données personnelles et exercer vos droits conformément à la « loi informatique et liberté » cliquez-ici.