Maison neuve à
Bayeux
(14400) Référence :
JS2322665_2
Prix du projet : Maison avec Terrain
prix 256 000 €
- 5 pièces
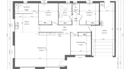
- 3 chambres
- Surface maison 110 m2
Bayeux : maison de 5 pièces (110 m²) à vendre
IDÉALEMENT SITUÉE - MAISON 5 PIÈCES NEUVE
En vente : à 9 km de la Manche et à 26 km de Caen, nous vous proposons, idéalement située dans Bayeux (14400), cette maison de 5 pièces de plain-pied de 110 m².
Conçue de plain-pied, elle compte trois chambres, une cuisine et une salle de bains. La maison est neuve.
Le terrain de la propriété est de 300 m².
Cette maison se trouve dans un quartier prisé. Il y a des établissements scolaires (de la maternelle au lycée) à moins de 10 minutes à pied, tout comme une structure d'accueil pour les tout-petits. Côté transports, on trouve la gare Bayeux à quelques pas de la maison. On trouve un accès à la nationale N13 à 3 km. Il y a une bibliothèque, des commerces, des boulangeries, un supermarché, une supérette et des boucheries-charcuteries à proximité. 2 marchés animent le quartier.
Elle est proposée à l'achat pour 256 000 €.
N'hésitez pas à prendre contact avec Emilie HUE (06-29-81-46-66) pour plus de renseignements sur le bien et sur les modalités de vente. Maisons France Confort Bayeux vous accompagne dans tous vos projets immobiliers et à toutes les étapes de l'achat.
Annonce proposée par un Agent Commercial Partenaire.
Mentions légales
Terrain proposé par un partenaire foncier selon disponibilités et autorisation de publicité au prix de 56 000 €. Hors droit d'enregistrement et frais de notaire. Terrain + Maison proposés au prix de 200 000 € (Hors branchements et raccordements, papiers peints, peintures, revêtement de sol dans les chambres. Tarif modifiable sans préavis). Etiquette énergie : A. Différents modèles disponibles pour ce terrain. Assurances et garanties du constructeur (RC professionnelle, décennale, dommage ouvrage, garantie de remboursement de l'acompte, livraison à prix et délai convenu) : https://www.maisons-france-confort.fr/mentions-legales/. HEXAOM Services est enregistré auprès de l'ORIAS en tant que Courtier en financement, Niveau 1, sous le numéro 14001345.Agence Maisons France Confort de Bayeux (14400)
- Téléphone :
- 02 31 51 20 91
- Adressse :
- 2, rue Saint Loup
14400 Bayeux, France
