Maison neuve à 
  Bayeux
 (14400)  Référence :
 JS2322580_8 
Prix du projet : Maison avec Terrain
prix 221 000 €
- 6 pièces
- 4 chambres
- Surface maison 110 m2
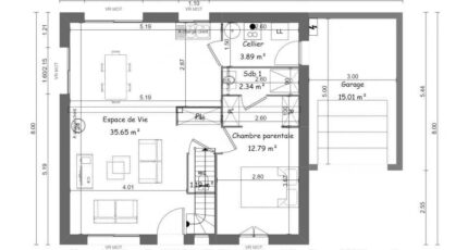
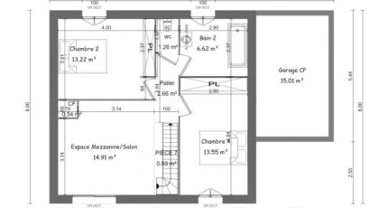
VENTE : maison T6 (110 m²) à Bayeux
PROCHE DE CAEN - MAISON 6 PIÈCES NEUVE
En vente à 9 km de la Manche et à quelques kilomètres de Caen, Maisons France Confort Bayeux vous propose à Bayeux (14400), cette maison de 6 pièces de 110 m² et de 303 m² de terrain. Son intérieur offre quatre chambres, une cuisine et deux salles de bains.
Il s'agit d'une maison de 2 niveaux. Elle est neuve.
On trouve des écoles de tous niveaux à moins de 10 minutes à pied, tout comme une crèche. Niveau transports, il y a la gare Bayeux dans un rayon de 1 km. Il y a un accès à la nationale N13 à 3 km. On trouve une bibliothèque, des commerces, des boulangeries, un supermarché, une supérette et un bureau de poste à quelques minutes de la maison. 2 marchés animent les environs.
Elle est à vendre pour la somme de 221 000 €.
Prenez contact avec Emilie HUE (06-29-81-46-66) pour plus d'informations sur cette maison ou sur les modalités de vente.
Annonce proposée par un Agent Commercial Partenaire.
Mentions légales
Terrain proposé par un partenaire foncier selon disponibilités et autorisation de publicité au prix de 56 000 €. Hors droit d'enregistrement et frais de notaire. Maison proposée, avec un contrat de construction de maison individuelle, dans le cadre de la loi du 19/12/1990, au prix de 165 000 € (Hors branchements et raccordements, papiers peints, peintures, revêtement de sol dans les chambres, qui sont chiffrés dans les travaux qui restent à charge du client. Tarif modifiable sans préavis). Étiquette énergie : A. Différents modèles disponibles pour ce terrain. Assurances et garanties du constructeur comprises (RC professionnelle, décennale, dommage ouvrage).Agence Maisons France Confort de Bayeux (14400)
- Téléphone :
- 02 31 51 20 91
- Adressse :
-  2, rue Saint Loup
 14400 Bayeux, France
 
  
  
  
  
 