Maison neuve à
Beauchalot
(31360) Référence :
VP2462958_1
Prix du projet : Maison avec Terrain
prix 283 000 €
- 5 pièces
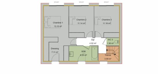
- 3 chambres
- Surface maison 100 m2
Beauchalot : maison de 5 pièces (100 m²) à vendre
MAISON 5 PIÈCES NEUVE
En vente proche de l'Espagne, à Beauchalot (31360), nous sommes ravis de vous présenter cette maison de 5 pièces de plain-pied de 100 m². Conçue de plain-pied, elle compte trois chambres, une cuisine et deux salles de bains.
Le terrain de la propriété s'étend sur 2 176 m².
La maison est neuve.
Une école primaire est implantée dans le quartier. Niveau transports, il y a trois gares (Labarthe-Inard, Lestelle-de-Saint-Martory et Saint-Martory) à moins de 10 minutes en voiture. L'autoroute A64 est accessible à 2 km. On trouve une boucherie-charcuterie dans les environs.
Elle est proposée à l'achat pour 283 000 €.
N'hésitez pas à prendre contact avec Valérie PUJADE (tél : 06-66-12-13-51) pour obtenir de plus amples renseignements sur cette maison, sur les modalités de vente ou sur les démarches à suivre. Maisons Bruno Petit GHPA Saint-Gaudens est là pour vous accompagner à toutes les étapes de l'achat.
Mentions légales
Terrain proposé par un partenaire foncier selon disponibilités et autorisation de publicité au prix de 34 900 €. Hors droit d'enregistrement et frais de notaire. Terrain + Maison proposés au prix de 283 000 € (Hors branchements et raccordements, papiers peints, peintures, revêtement de sol dans les chambres. Tarif modifiable sans préavis). Etiquette énergie : A. Différents modèles disponibles pour ce terrain. Assurances et garanties du constructeur (RC professionnelle, décennale, dommage ouvrage, garantie de remboursement de l'acompte, livraison à prix et délai convenu) : https://www.maisons-bruno-petit.com/mentions-legales/.Agence Bruno Petit GHPA de Saint-Gaudens (31800)
- Téléphone :
- 05 61 95 55 25
- Adressse :
- 124 rue Jean Adoue
31800 Saint-Gaudens, France
