Maison neuve à
Beaufay
(72110) Référence :
LL2424267_4
Prix du projet : Maison avec Terrain
prix 279 000 €
- 7 pièces
- 3 chambres
- Surface maison 114 m2
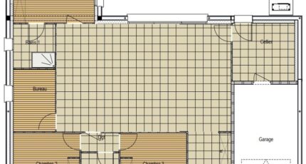
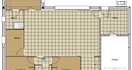
Maison T7 (114 m²) à vendre à Beaufay
EMPLACEMENT PRIVILÉGIÉ - MAISON 7 PIÈCES NEUVE
À deux pas du Mans, votre agence Maine Construction Le Mans est ravie de vous présenter à vendre, bénéficiant d'un emplacement d'exception dans Beaufay (72110), cette maison de 7 pièces de plain-pied de 114 m². Conçue de plain-pied, elle comporte trois chambres, une cuisine et deux salles de bains.
Le terrain de la propriété s'étend sur 716 m².
La maison est neuve.
La maison se situe dans un quartier attractif. Une école primaire y est implantée. Les autoroutes A11 et A28 sont accessibles à moins de 16 km. Il y a un tennis, une boulangerie et une épicerie dans les environs.
Elle est à vendre pour la somme de 279 000 €.
N'hésitez pas à prendre contact avec notre agence (Luc LIVET : 07-77-76-37-30) pour plus de renseignements sur le bien. Maine Construction Le Mans est là pour vous accompagner dans tous vos projets immobiliers.
Mentions légales
Terrain proposé par un partenaire foncier selon disponibilités et autorisation de publicité au prix de 39 500 €. Hors droit d'enregistrement et frais de notaire. Terrain + Maison proposés au prix de 279 000 € (Hors branchements et raccordements, papiers peints, peintures, revêtement de sol dans les chambres. Tarif modifiable sans préavis). Etiquette énergie : A. Différents modèles disponibles pour ce terrain. Assurances et garanties du constructeur (RC professionnelle, décennale, dommage ouvrage, garantie de remboursement de l'acompte, livraison à prix et délai convenu) : https://www.maine-construction.fr/mentions-legales/. HEXAOM Services est enregistré auprès de l'ORIAS en tant que Courtier en financement, Niveau 1, sous le numéro 14001345.Agence Maine Construction de Le Mans (72000)
- Téléphone :
- 02 43 21 93 33
- Adressse :
- Rond-point de César Antarès
72000 Le Mans, France
