Maison neuve à
Beaupuy
(47200) Référence :
AF2465810-1_1
Prix du projet : Maison avec Terrain
prix 222 000 €
- 3 pièces
- 2 chambres
- Surface maison 100 m2
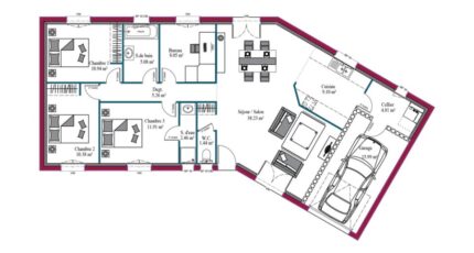
Maison de 3 pièces (100 m²) à vendre à Beaupuy
MAISON 3 PIÈCES NEUVE
À vendre : nous vous présentons à Beaupuy (47200), cette maison de 3 pièces de plain-pied de 100 m². Elle comporte deux chambres, une cuisine et une salle de bains.
Le terrain de la propriété est de 1 000 m².
Cette maison est neuve.
On trouve une école primaire dans le quartier. Côté transports, il y a les gares Marmande, Sainte-Bazeille et Lamothe-Landerron à moins de 10 minutes en voiture. L'autoroute A62 est accessible à 12 km. On trouve une bibliothèque et un commerce à quelques minutes.
Il est proposé à l'achat pour 222 000 €.
Mentions légales
Idée de réalisation en modèle prêt à décorer sur l'un de nos terrains partenaires, sous réserve de disponibilités. Voir détails en agence.Agence Maisons de la Côte Atlantique de Marmande (47200)
- Téléphone :
- 05 53 84 47 83
- Adressse :
- Route de Bordeaux
47200 Marmande, France
