Maison neuve à
Beaupuy (47200) Référence : AF2465810-1_3

Prix du projet : Maison avec Terrain

prix 210 000 €

  • 4 pièces
  • 3 chambres
  • Surface maison 90 m2

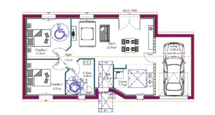
Maison de 4 pièces (90 m²) à vendre à Beaupuy
MAISON 4 PIÈCES NEUVE
À vendre : ayez le coup de coeur pour à Beaupuy (47200), cette maison de 4 pièces de plain-pied de 90 m².
Elle compte trois chambres, une cuisine et une salle de bains. La maison est neuve.
Le terrain du bien s'étend sur 1 000 m².
On trouve une école primaire dans le quartier. Niveau transports en commun, il y a trois gares (Marmande, Sainte-Bazeille et Lamothe-Landerron) à moins de 10 minutes en voiture. On trouve un accès à l'autoroute A62 à 12 km. On trouve une bibliothèque et un commerce à quelques minutes du logement.
Elle est à vendre pour la somme de 210 000 €.

Mentions légales

Idée de réalisation en modèle prêt à décorer sur l'un de nos terrains partenaires, sous réserve de disponibilités. Voir détails en agence.

Contactez l'agence de Marmande

05 53 84 47 83

    * Champs obligatoires

    Vos informations sont traitées par HEXAOM et transmises à un conseiller commercial qui vous contactera afin de répondre à votre demande. Les plans et images présentés sur notre site sont la propriété d’HEXAOM et ne peuvent pas être reproduits sans son accord. Pour retrouver notre politique de protection des données personnelles et exercer vos droits conformément à la « loi informatique et liberté » cliquez-ici.