Maison neuve à
Bénesse-Maremne (40230) Référence : TC2312003_1

Prix du projet : Maison avec Terrain

prix 510 000 €

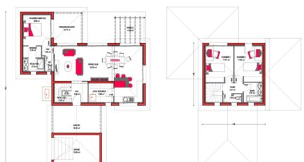
  • 4 pièces
  • 3 chambres
  • Surface maison 105 m2

Imaginez votre future maison sur ce beau terrain bien exposé, situé à Benesse Maremne.
Avec une superficie d'environ 600 m², ce terrain offre un cadre idéal pour réaliser un projet personnalisé, selon vos envies et vos besoins.

Nous vous accompagnons dans chaque étape pour concevoir une maison sur mesure.

Pour plus d'informations ou une étude de votre projet,

Contactez Théo Costosseque, de l'agence Couleur Villas à labenne au o651110391.

Terrain proposé par un partenaire foncier selon disponibilité dans le cadre d'un projet de construction avec Couleur Villas. Les descriptions, photographies, surfaces et prix illustrant l'annonce sont fournies à titre indicatif et ne sont pas contractuels. Non soumis au DPE.

Mentions légales

Terrain proposé par un partenaire foncier selon disponibilité dans le cadre d’un projet de construction avec Couleur Villas. Les descriptions, photographies, surfaces et prix illustrant l’annonce sont fournies à titre indicatif et ne sont pas contractuels. Non soumis au DPE. Différents modèles disponibles.

Contactez l'agence de Labenne

05 24 33 03 87

    * Champs obligatoires

    Vos informations sont traitées par HEXAOM et transmises à un conseiller commercial qui vous contactera afin de répondre à votre demande. Les plans et images présentés sur notre site sont la propriété d’HEXAOM et ne peuvent pas être reproduits sans son accord. Pour retrouver notre politique de protection des données personnelles et exercer vos droits conformément à la « loi informatique et liberté » cliquez-ici.