Maison neuve à
Benfeld
(67230) Référence :
VM2429925_1
Prix du projet : Maison avec Terrain
prix 339 000 €
- 4 pièces
- 3 chambres
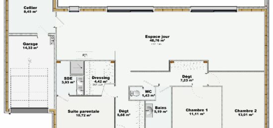
- Surface maison 75 m2
MAISON A OSSATURE BOIS
L'essentiel du confort dans un écrin moderne
Avec ses 75 m² de surface au sol, le modèle ORIGIN a été imaginé pour tirer le meilleur parti de chaque mètre carré. Compact, fonctionnel et chaleureux, il offre tout ce qu'il faut pour bien vivre, tout simplement.
Le coeur de la maison bat dans un espace jour de plus de 31 m², baigné de lumière. La pièce à vivre, ouverte et accueillante, combine un salon-séjour agréable avec une cuisine intégrée qui invite à la convivialité. Un espace fluide, idéal pour se retrouver et partager.
Cette maison dispose également de :
Un agencement intelligent, pour un intérieur à la fois simple et efficace !
3 chambres bien proportionnées
Une salle de bains fonctionnelle et un WC indépendant, bien séparés de la pièce de vie
Un cellier idéal pour le rangement et la fonctionnalité
Du chauffage au sol, pour un confort optimal toute l'année
Et pour personnaliser votre maison selon vos envies, profitez de notre pack d'options, le tout pour une maison à votre image.
Envie d'un chez-vous confortable et facile à vivre ?
Le modèle ORIGIN est la réponse.
📞 Contactez-nous dès aujourd'hui pour plus d'informations et venez découvrir une maison qui conjugue style, confort et qualité.
Le bonheur, c'est simple comme Maisons Brand.
Mentions légales
Terrain proposé par un partenaire foncier selon disponibilités et autorisation de publicité au prix de 117 900 €. Hors droit d'enregistrement et frais de notaire. Terrain + Maison proposés au prix de 339 000 € (Hors branchements et raccordements, papiers peints, peintures, revêtement de sol dans les chambres. Tarif modifiable sans préavis). Etiquette énergie : A. Différents modèles disponibles pour ce terrain. Assurances et garanties du constructeur (RC professionnelle, décennale, dommage ouvrage, garantie de remboursement de l'acompte, livraison à prix et délai convenu) : https://www.maisonsbrand.fr/informations-legales/.Agence BRAND Maisons Individuelles de Colmar (68000)
- Téléphone :
- 03 89 41 28 88
- Adressse :
- 65 rue de la Semm
68000 Colmar, France
