Maison neuve à
Bénouville
(14970) Référence :
SC2477847_3
Prix du projet : Maison avec Terrain
prix 379 000 €
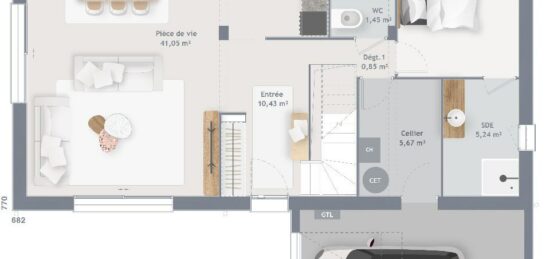
- 6 pièces
- 4 chambres
- Surface maison 105 m2
Belle opportunité !
Votre projet de construction sur mesure!
Maison neuve de 105 m² RE2020 + terrain de 464 m², idéalement située à Bénouville, dans un secteur calme et recherché.
✨ Les + :
Maison neuve sur 2 niveaux
4 chambres (idéal famille)
2 salles de bains
Belle pièce de vie avec cuisine
Environnement verdoyant
À seulement 5 min de Ouistreham et des plages
Proche de Caen
👨👩👧👦 Vie pratique :
École et crèche à pied, commerces et services à proximité. Accès rapide à la gare de Caen et aux axes A13 / A84.
💰 Prix : 379 000 €
📞 Contact : Séverine CHATARD - 06-29-77-10-07
Maisons France Confort Caen - Accompagnement complet de votre projet immobilier
Mentions légales
Terrain proposé par un partenaire foncier selon disponibilités et autorisation de publicité au prix de 159 000 €. Hors droit d'enregistrement et frais de notaire. Terrain + Maison proposés au prix de 379 000 € (Hors branchements et raccordements, papiers peints, peintures, revêtement de sol dans les chambres. Tarif modifiable sans préavis). Etiquette énergie : A. Différents modèles disponibles pour ce terrain. Assurances et garanties du constructeur (RC professionnelle, décennale, dommage ouvrage, garantie de remboursement de l'acompte, livraison à prix et délai convenu) : https://www.maisons-france-confort.fr/mentions-legales/. HEXAOM Services est enregistré auprès de l'ORIAS en tant que Courtier en financement, Niveau 1, sous le numéro 14001345.Agence Maisons France Confort de Caen (14000)
- Téléphone :
- 02 31 86 12 21
- Adressse :
- 11 place de la Résistance
14000 Caen, France
